EasyManua.ls Logo

Seltron ST2 - ST2 RDR - direct heating circuit and domestic hot water warming

Seltron ST2
60 pages
Print Icon
To Next Page IconTo Next Page
To Next Page IconTo Next Page
To Previous Page IconTo Previous Page
To Previous Page IconTo Previous Page
Loading...
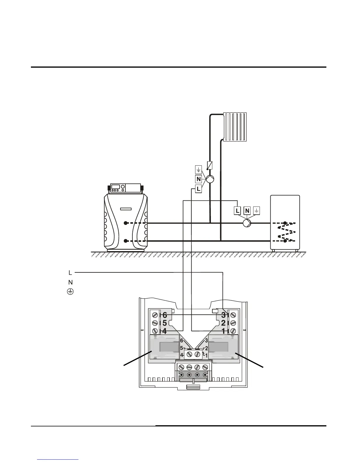
Parameter S1.1=2.
Picture 38
43
INSTALLATION MANUAL
ST2RDR - direct heating circuit and domestic
hot water warming
Module R
Module DR

Table of Contents

Related product manuals