EasyManua.ls Logo

SICK CLV69x - Page 72

SICK CLV69x
134 pages
Print Icon
To Next Page IconTo Next Page
To Next Page IconTo Next Page
To Previous Page IconTo Previous Page
To Previous Page IconTo Previous Page
Loading...
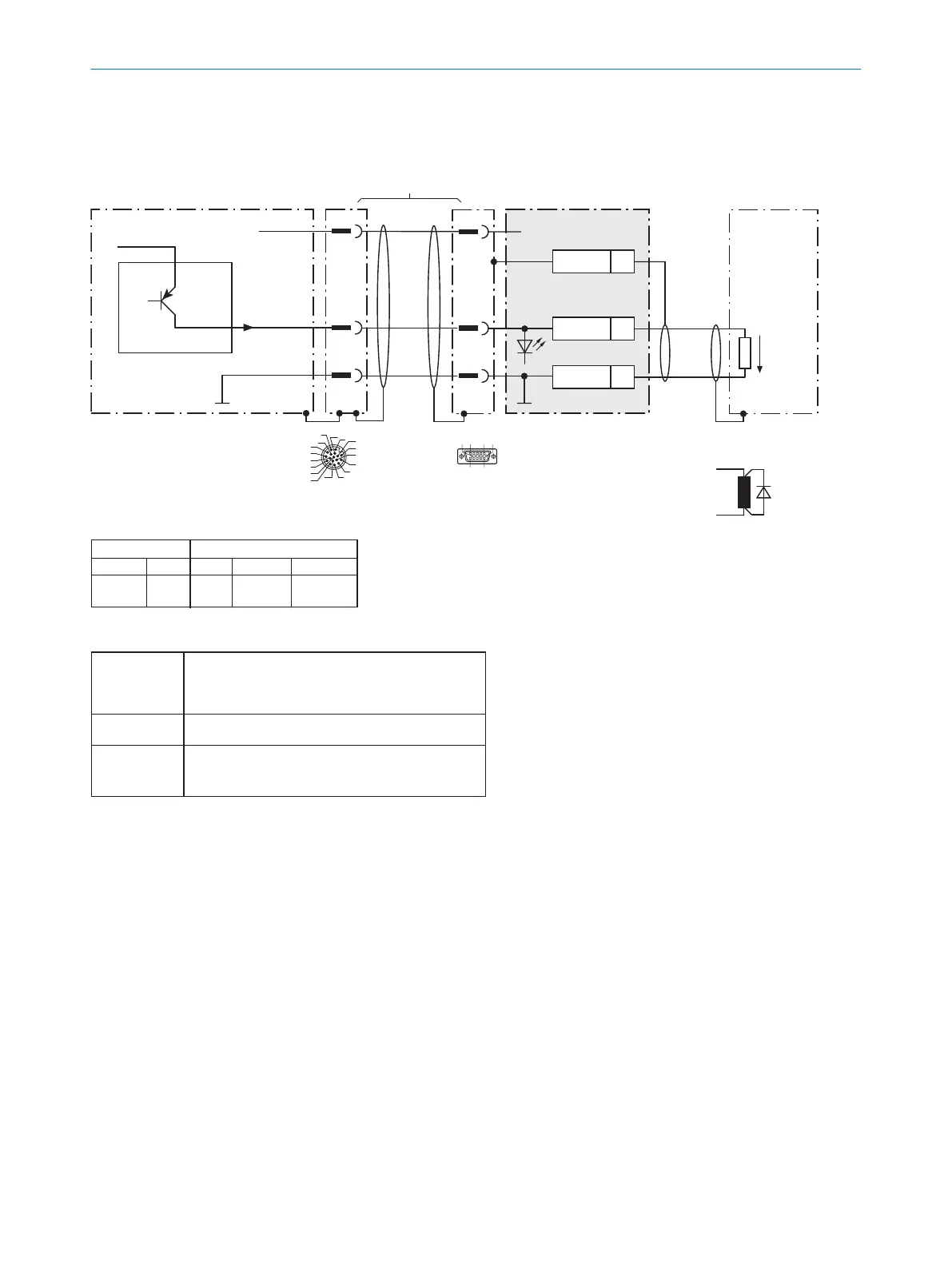
Wire “Result 1 and 2” switching outputs of the CLV69x in the CDM420-0006 connection module
CLV69x
CDM420-0006
Load (e.g. PLC)
Adapter cable
1)
Y2
5
.
.
.
Z
Name
13
GND
5
Shield
+24V* (U
V
)
U
V
GND
Sweep-out circuit:
Attach a freewhee-
ling diode directly
to the load.
With inductive load:
U
a
Result X
GND
Y1
1
2
2)
1
D-Sub-HD
female connector, 15-pin
M12 male connector,
17-pin, A-coded
17
16
10
11
12
15
14
6
5
4
13
7
8
9
1
2
3
6110 5
1115
For CLV69x-xxx0 (without heating):
No. 2049764 (0.9m)
No. 2055419 (2m)
No. 2055420 (3m)
No. 2055859 (5m)
For CLV69x-xxx1 (with heating):
No. 2061480 (2m)
No. 2061605 (3m)
No. 2061481 (5m)
1) Dependent on type
2) Pin 2 in CLV69x-xxx1
(with heating) not connected
Characteristic data of “Result 1 and 2” switching outputs
PNP switching to supply voltage U
V
CLV69x default settings:
Result 1: device ready (static), logic: active high
Result 2: good read, 100mm, logic: active high
–Short-circuit protected + temperature protected
–Not electrically isolated from supply voltage (+24V*)
0V ≤ U
a
≤ U
V
Guaranteed:
(U
V
− 1.6V) ≤ U
a
≤ U
V
at I
a
≤ 100mA
Switching
behavior
Properties
Electrical
values
Functional assignment for switching outputs
via SOPAS-ET configuration software!
CDM420-0006CLV69x
Terminal Z
14
15
Name
Result 1
Result 2
Pin Y2
12
13
Pin Y1
13
14
Result X
Result 1
Result 2
Figure 65: Wiring switching outputs “Result 1 and 2”
6
ELECTRICAL INSTALLATION
72
O P E R A T I N G I N S T R U C T I O N S | CLV69x 8014396/ZMG8/2017-07-04 | SICK
Subject to change without notice

Table of Contents

Related product manuals