EasyManua.ls Logo

Siemens FDCIO223

Siemens FDCIO223
70 pages
To Next Page IconTo Next Page
To Next Page IconTo Next Page
To Previous Page IconTo Previous Page
To Previous Page IconTo Previous Page
Loading...
Structure and function
37
Building Technologies
009122_e1_en_--
Fire Safety
2015-10-06
24 V
0 V
0 V
4 V
I/O
FDCIO223
+
R = 30...3,3 k
L
1
24 V
0 V
10 V
0 V
I/O FDCIO223
+
1
3.3 k
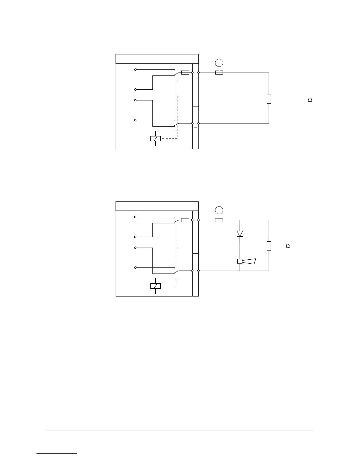
Circuit featuring identical-polarity monitoring
Circuit for control lines with identical-polarity monitoring
1 External fuse (to be provided by
customer)
Circuit featuring reverse-polarity monitoring
Circuit for control lines with reverse-polarity monitoring
1 External fuse (to be provided by
customer)
The figure shows the relay in the dropped-out state, i.e., the untriggered state.
The external fuse (1) value must be individually adapted to the load.
If two outputs are in use: Max. 1 A per output
If one output is in use: Max. 1.5 A
Fuse characteristics: Slow-blow

Table of Contents

Other manuals for Siemens FDCIO223

Related product manuals