EasyManua.ls Logo

Siemens SIMOTION D425 - Dimension Drawing of D445

Siemens SIMOTION D425
90 pages
Print Icon
To Next Page IconTo Next Page
To Next Page IconTo Next Page
To Previous Page IconTo Previous Page
To Previous Page IconTo Previous Page
Loading...
Dimension drawings
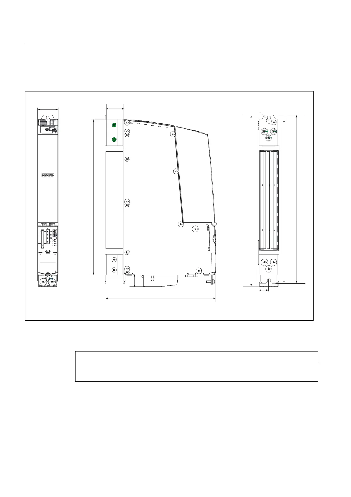
5.2 Dimension drawing of D445
D4x5
64 Manual, 05/2009
5.2 Dimension drawing of D445
6,027,21'










0
Figure 5-2 Dimension drawing of SIMOTION D445
The SIMOTION D445 must always be operated with a fan/battery module.
NOTICE
The 80 mm clearances above and below the components must be observed. The unit
protects itself from overheating by shutting down.

Table of Contents

Related product manuals