EasyManua.ls Logo

Siemens SIRIUS 3RF Series - Page 633

Siemens SIRIUS 3RF Series
786 pages
Print Icon
To Next Page IconTo Next Page
To Next Page IconTo Next Page
To Previous Page IconTo Previous Page
To Previous Page IconTo Previous Page
Loading...
SIRIUS 3RA21/22 load feeders
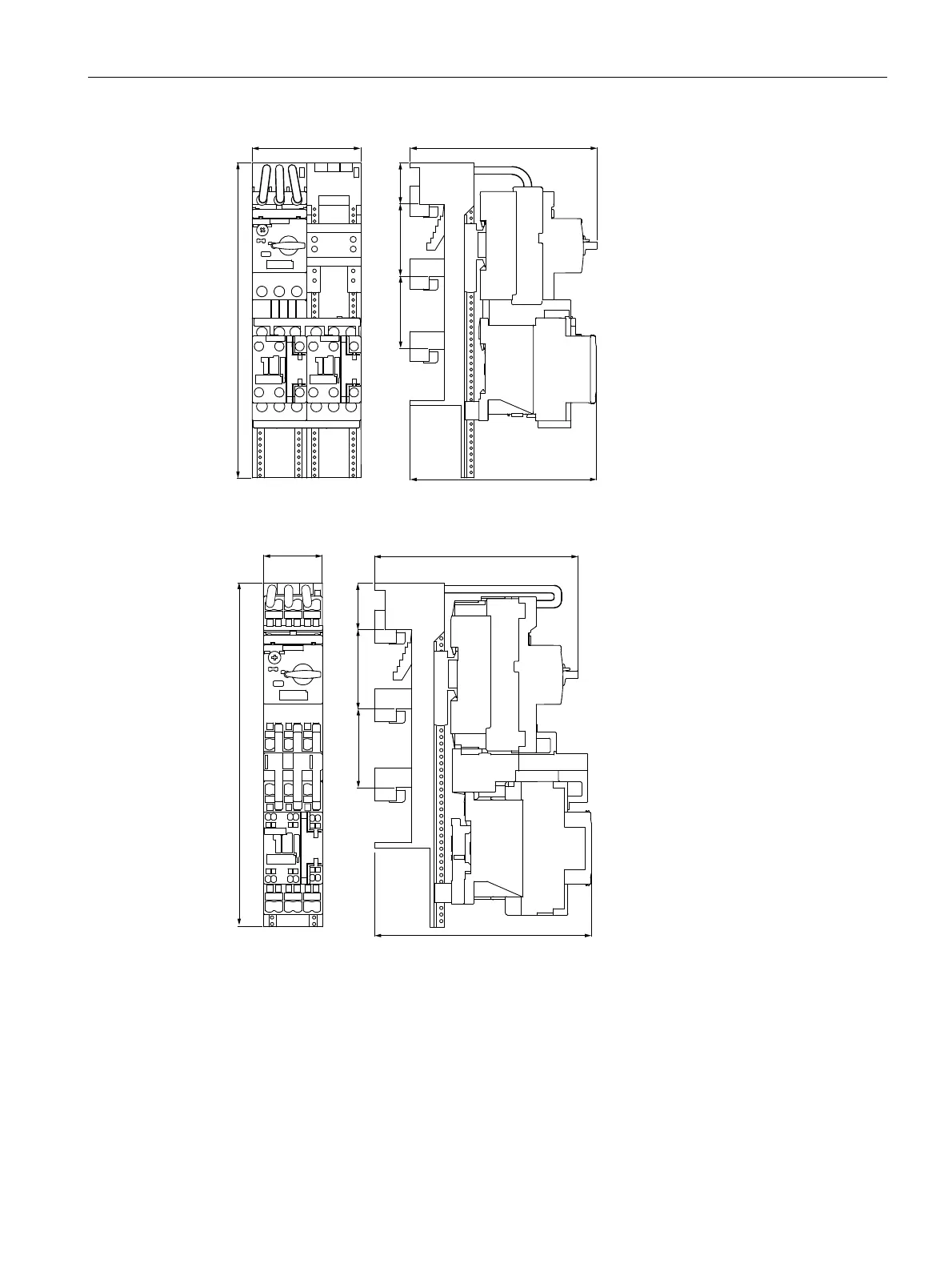
6.11 Dimension drawings (dimensions in mm)
SIRIUS Innovations
System Manual, 01/2011, A8E56203870002-03
633






Figure 6-29 S0/S0 and S00/S0 reversing starters, AC, screw-type connection system
3RA2220-..D..-0AP0







Figure 6-30 S0 direct-on-line starter, AC, spring-loaded connection system
3RA2120-..H..-0AP0

Table of Contents

Related product manuals