EasyManua.ls Logo

Siemens SIRIUS 3SK1 - Page 246

Siemens SIRIUS 3SK1
262 pages
To Next Page IconTo Next Page
To Next Page IconTo Next Page
To Previous Page IconTo Previous Page
To Previous Page IconTo Previous Page
Loading...
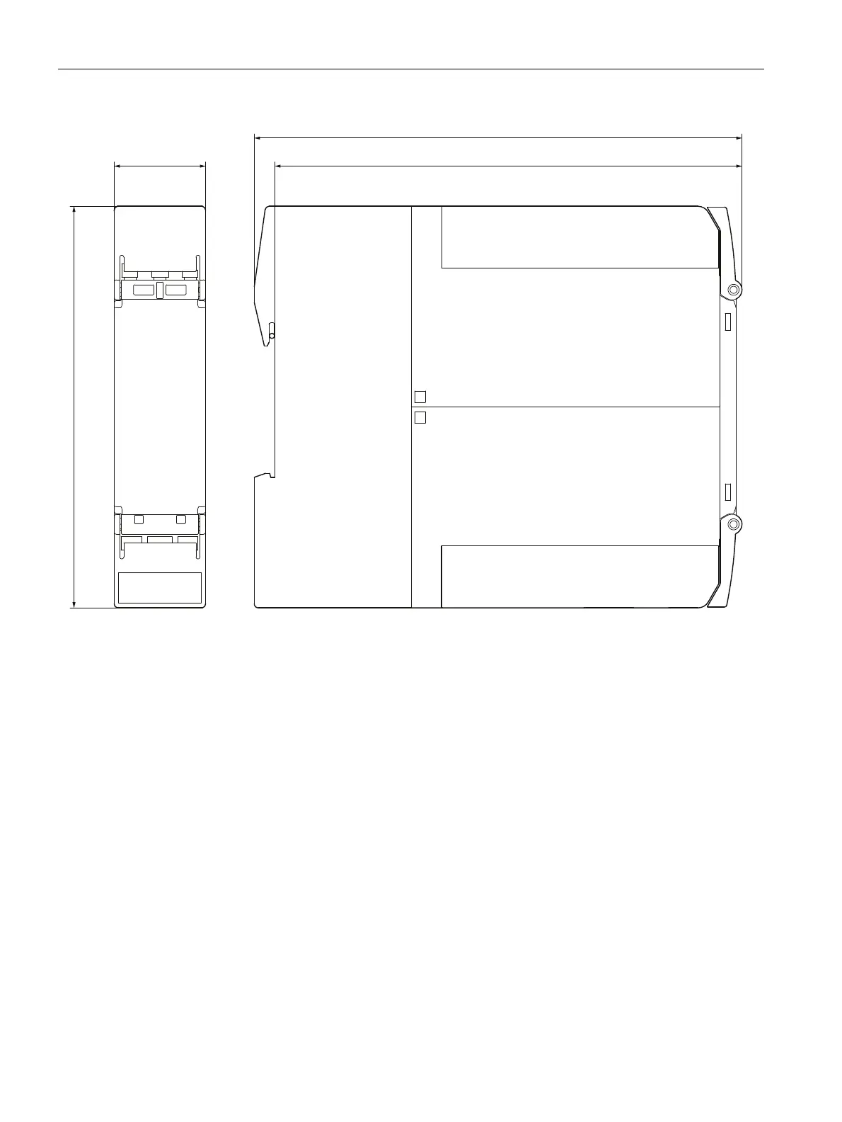
Dimension drawings
14.1 Dimension drawings for 3SK1 devices
3SK1 safety relays
246 Manual, 04/2013, A5E02526190021A/RS-AA/01




Figure 14-4 Enclosure 22.5 mm (long) for safety relays:
3SK1111-….. ; 3SK1121-….. ; 3SK1122-….. ; 3SK1211-….. ; 3SK1230-…..

Table of Contents

Other manuals for Siemens SIRIUS 3SK1

Related product manuals