EasyManua.ls Logo

SnowEx RDV V-Plow - Harness Diagram - LED Headlamps

SnowEx RDV V-Plow
84 pages
Print Icon
To Next Page IconTo Next Page
To Next Page IconTo Next Page
To Previous Page IconTo Previous Page
To Previous Page IconTo Previous Page
Loading...
Lit. No. 30118, Rev. 00 June 15, 2020
22
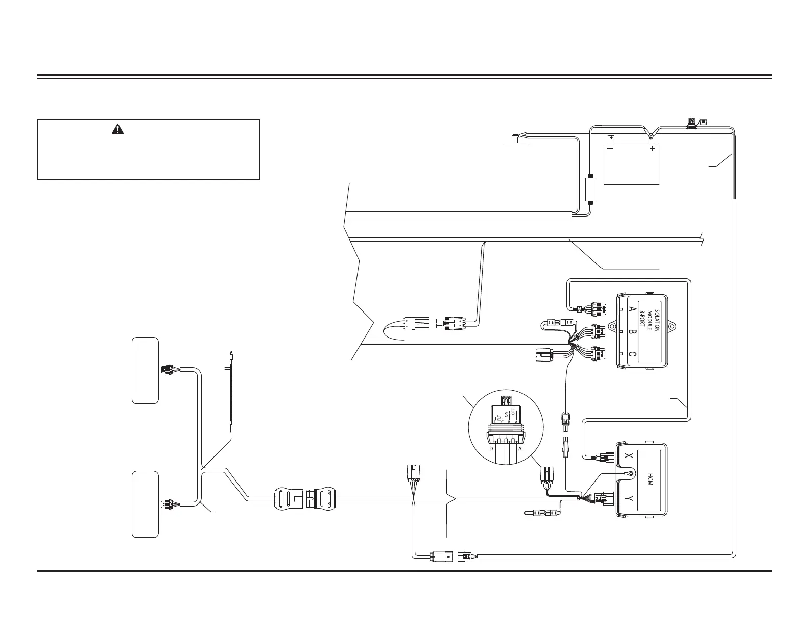
VEHICLE-SIDE ELECTRICAL COMPONENTS
HARNESS DIAGRAM – LED HEADLAMPS
CAUTION
On 2-plug electrical systems, plug covers
shall be used whenever snowplow is
disconnected.
Battery
HCM to
Isolation Module
Harness Assembly
Plow Lights
Plow
Lighting Harness
Vehicle
Lighting
Harness
Vehicle Control Harness
Vehicle
Battery Cable
Vehicle
Cable
Assembly
EdgeView
Wire Assembly
EdgeView
Enable Jumper
Turn Signal
Configuration
Plug
15A Fuses
EdgeView
Wire
Ford SD Quad Light
Relay Enable Plug & Cover
RAM Enable
Wire (7-wire
system only)
25A Fuse
10A Fuses
200A Fuse
and Holder**
To Snowplow Control
To Switched
Accessory
YEL
RED
ORN
BLK
YEL
Vehicle
Grounding Post*
* See the Battery Connections section
for more information.
** Included in 200A Fuse Kit (PN 90730)
Install with
wires down.

Table of Contents