EasyManua.ls Logo

SnowEx RDV V-Plow - Scrape Lock Adjustment

SnowEx RDV V-Plow
84 pages
Print Icon
To Next Page IconTo Next Page
To Next Page IconTo Next Page
To Previous Page IconTo Previous Page
To Previous Page IconTo Previous Page
Loading...
Lit. No. 30118, Rev. 00 June 15, 2020
80
the ground and turn the control OFF. Turn the
vehicle ignition to the "OFF" position.
2. Disconnect the snowplow battery cable from
the vehicle battery cable.
3. Remove the hydraulic unit cover.
4. Loosen the breather/ ll plug slowly to relieve
any pressure in the reservoir.
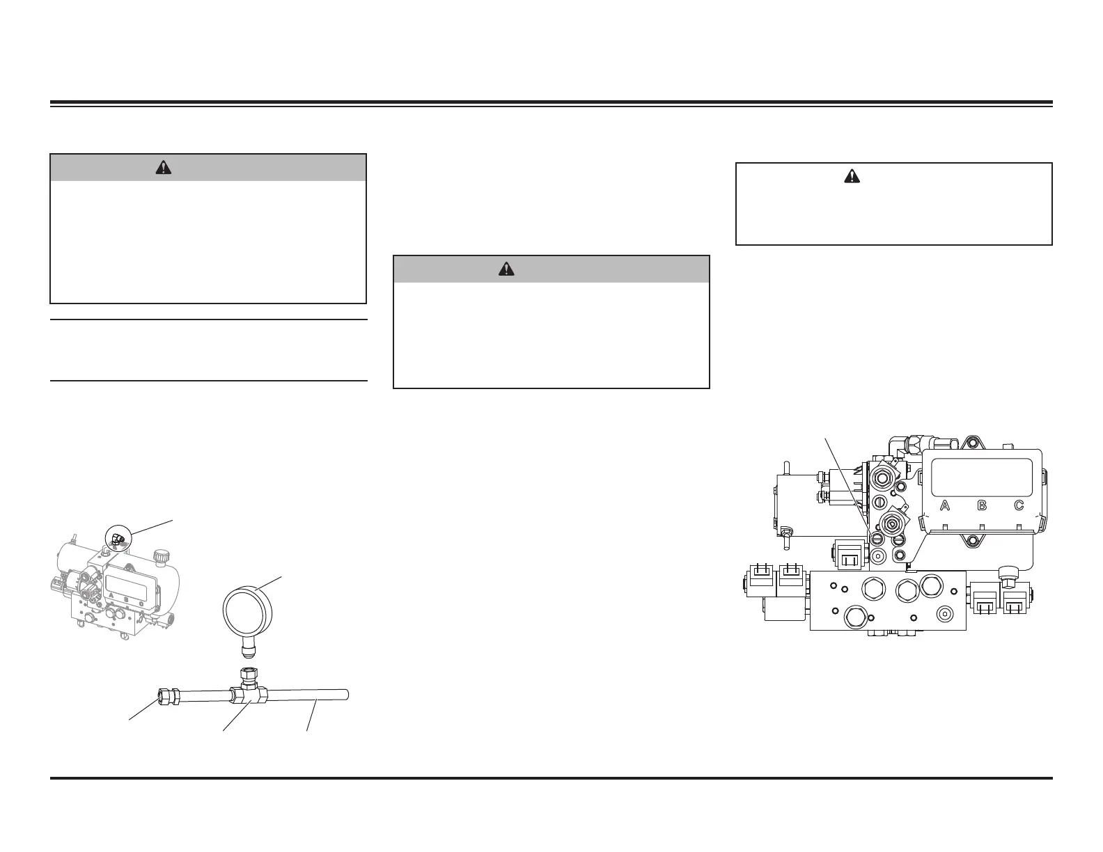
5. Disconnect the lift ram base hose and install a
500600 psi pressure gauge with a tee tting
into the lift ram base hose line.
6. Retighten the breather/ ll plug.
7. Reconnect the snowplow battery cable to the
vehicle battery cable. Turn the vehicle ignition
and snowplow control ON.
8. Raise the blade high enough to slide a oor
TROUBLESHOOTING
SCRAPE LOCK ADJUSTMENT
NOTE: Verify if the Scrape Maxx down-force
feature has been installed and if it is
ENABLED on the hydraulic system.
Follow the instructions below to adjust the pressure
setting of the scrape lock feature. The snowplow
must be attached to the vehicle.
1. Park the vehicle on a smooth, level, hard
surface, such as concrete. Lower the blade to
jack under the center of the blade. Lower the
blade onto the jack. Turn the control OFF to
ensure that the FLOAT function is o .
9. While raising the blade with the jack, observe
the lift cylinder. When the lift cylinder starts to
retract, the pressure gauge should read 210 psi.
The pressure can only be measured as the
blade is rising. It may be necessary to perform
this process more than once to obtain an
accurate reading.
CAUTION
Never operate the unit while adjusting the
scrape lock valve. Doing so will damage
the scrape lock valve O-rings.
Lift Ram
Base Hose
500600 psi
Pressure
Gauge
Fitting for Lift Ram
Base Hose
Tee Fitting
Adapter
RV2 for Scrape
Lock Adjustment
WARNING
The driver shall keep bystanders clear of
the blade when it is being raised, lowered,
or angled. Do not stand between vehicle
and blade or within 8 feet of a moving blade.
A moving or falling blade could cause
personal injury.
WARNING
If the Scrape Maxx™ down-force feature
is ENABLED, the vehicle key is ON,
and the control has been placed in the
LOWER/FLOAT mode, without any further
control input the hydraulic unit will cycle ON
& O without notice, to maintain 200 psi of
down pressure.

Table of Contents