EasyManua.ls Logo

SnowEx RDV V-Plow - Electrical Schematics

SnowEx RDV V-Plow
84 pages
Print Icon
To Next Page IconTo Next Page
To Next Page IconTo Next Page
To Previous Page IconTo Previous Page
To Previous Page IconTo Previous Page
Loading...
Lit. No. 30118, Rev. 00 June 15, 2020
63
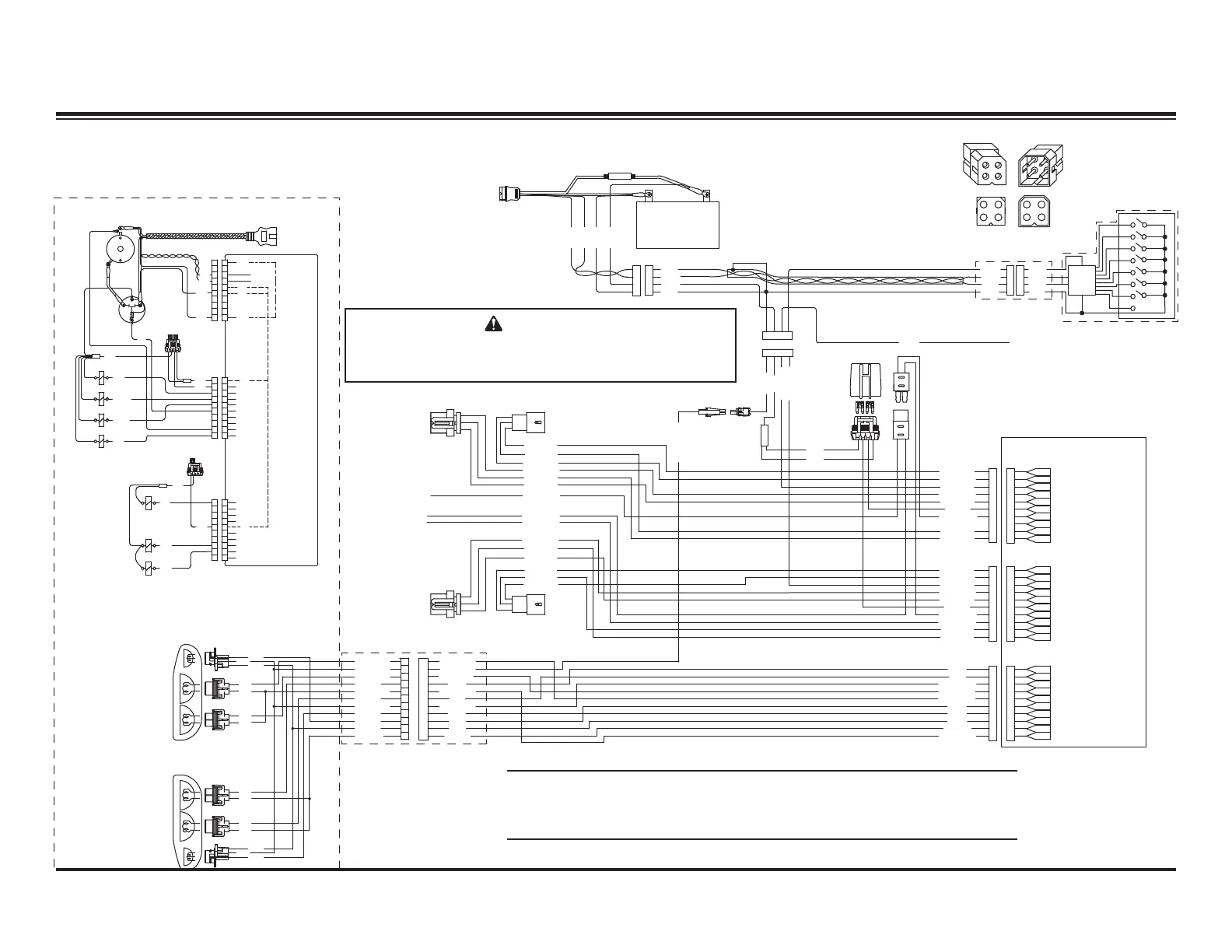
HEADLAMPS: ELECTRICAL SCHEMATIC – 3-PORT MODULE
3
2
1
4
3
2
1
4
4-Pin Plug
(Under Dash)
RED
RED
BLK
BLK
GRN
RED
WHT
BLK
Control
RED
To Switched Accessory Lead
Vehicle Control Harness, 4-Wire
1 – Red
2 – Green
3 – White
4 – Black
1 – Red (Control Power)
2 – Red (Twisted with #3)
3 – Black (Twisted with #2)
4 – Black (Control Ground)
4
2
3
1
4
2
3
1
(connector face view)
Vehicle Battery Cable, 4-Receptacle
BLK
BLK
RED
BACD
WHT
RED
RED
CC
A
B
A
B
D
D
BLK
TAN
Plow
Lighting
Harness,
11-Pin
Battery
+
RED
BLK
Located at Front of Vehicle
Snowplow Assembly
BLK
BRN
LTBLU
PUR
GRY
BLK/ORN
WHT
BLU/ORN
WHT/YEL
BLK/ORN
BLK/WHT
LOW-VA
COM-VJ
COM-BK
HIGH-VB
PARK-VH
HIGH-CD
LOW-AE
TURN-VB
TURN-VA
LOW-VA
COM-VJ
COM-BK
HIGH-VB
HIGH-CD
LOW-AE
ACC-DC
SWV-CC
12V
COM
GRY
PUR
WHT/YEL
LTBLU
BRN
BLU/ORN
WHT
BLK
BLK/WHT
BLK/ORN
SWV-CC
F1-BF
TURN-BG
PARK-VH
LOW-VA
HIGH-VB
HIGH-CD
LOW-AE
F2-CF
TURN-AG
COM-BJ
COM-BK
ACC-DC
HIGH-VB
LOW-VA
HIGH-CD
LOW-AE
COM-BJ
COM-BK
Vehicle
Lighting
Harness,
11-Pin
Isolation Module
Reversible
Turn Signal
Plug
10A
Control
& Module
Fuses
Typical
Plug-In
Harness
HIGH BEAM IN
DRL IN
LOW BEAM OUT
LOW BEAM IN
SWITCHED VACC IN
HIGH BEAM OUT
MODULE POWER IN
COM OUT
LEFT HIGH BEAM OUT
LEFT TURN OUT
MODULE COM IN
RIGHT HIGH BEAM OUT
RIGHT TURN OUT
LEFT LOW BEAM OUT
RIGHT LOW BEAM OUT
10
11
6
8
9
7
5
4
3
2
1
ADCB
TURN IN
COM IN
CONTROL PWR OUT
LOW BEAM OUT
HIGH BEAM OUT
COM OUT
COM IN
PARK LAMP IN
TURN IN
CONTROL POWER IN
HIGH BEAM IN
LOW BEAM IN
PARK LAMP OUT
LEFT HEADLAMP COM
RIGHT HEADLAMP COM
12V
12V
BLK/ORN
A
B
C
A
B
C
D
E
F
G
H
J
K
A
B
C
D
E
F
G
H
J
K
A
B
C
D
E
F
G
H
J
K
A
B
C
D
E
F
G
H
J
K
A
B
C
D
E
F
G
H
J
K
A
B
C
D
E
F
G
H
J
K
S5
S4C2
ORN
YEL
S3C2
RED
WHT
DKGRN
S3C1
S2
BRN
RED
S4C1
S5
12V
S4C2
S3C2
M/R (Motor)
12V
S3C1
S2
RED
12V
DO/RI
DO/RO
12V
COM
COM
MOTOR
PP SENSE
S4C1
PUR
SP2
SP1
DKBLU
S1
RED
RED
BLK
TAN
WHT
BLK
RED
EE
K
J
K
J
AA
EE
G
H
F
G
H
F
C
D
B
C
D
B
JJ
KK
G
H
F
G
H
F
AA
C
D
B
C
D
B
5A Fuses (2)
K
J
G
H
F
D
E
C
A
B
A
B
C
S1
ABC
D
5A Fuse
K
J
G
H
F
D
E
C
A
B
NEG (–)
MOTOR
RELAY
POS
(+)
X1
X2
PLOW MODULE
ABC
D
PUMP
MOTOR
7
9
10
8
5
6
4
2
3
1
11
PLOW LIGHTS
PARK
TURN
PARK
TURN
TURN (A)
P4
P2
(BLK)
1 KEY
P3 (LTGRY)
2 KEY
P7
P5
(BLK)
1 KEY
P6 (LTGRY)
2 KEY
AB
ABAB
AB
TURN (A)
PARK (B)
COM (G)
PARK
COM
TURN
COM
LOW
COM
HIGH
PARK
COM
TURN
HIGH
COM
LOW
COM
BLK/WHT
WHT
WHT/YEL
BLK
BLK/ORN
BLU/ORN
BLK/ORN
GRY
BRN
PUR
LTBLU
CAUTION
On 2-plug electrical systems, plug covers shall
be used whenever snowplow is disconnected.
NOTE: Labeling shown (left and right) is correct for modules
located on the driver's side of the vehicle. The reversible turn-signal
plug must be reversed for passenger-side installations.

Table of Contents