EasyManua.ls Logo

SnowEx RDV V-Plow - Page 64

SnowEx RDV V-Plow
84 pages
Print Icon
To Next Page IconTo Next Page
To Next Page IconTo Next Page
To Previous Page IconTo Previous Page
To Previous Page IconTo Previous Page
Loading...
Lit. No. 30118, Rev. 00 June 15, 2020
64
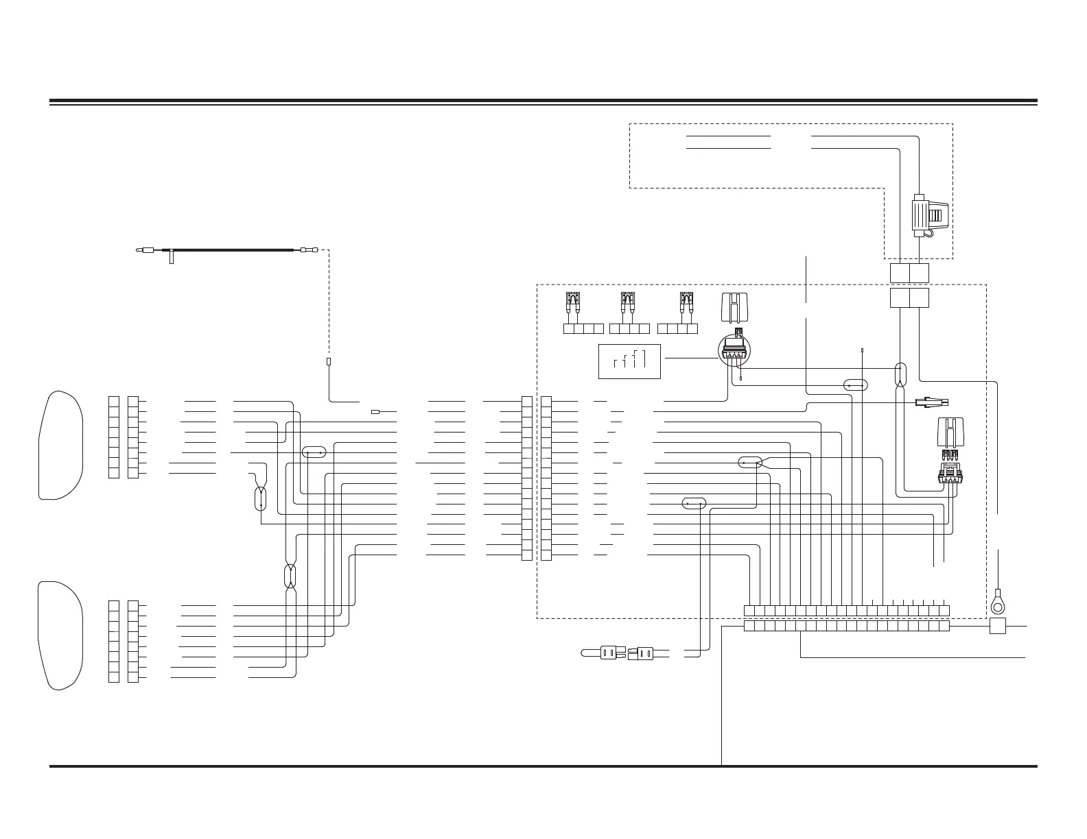
HEADLAMPS: TYPICAL LED SCHEMATIC (Continued on following page)
VEHICLE LIGHTING HARNESS
PN 72545 (72546)
CABLE ASSEMBLY, HCM
PN 72549 (72550)
NEW PLOW LIGHTING HARNESS: PN 72547 (72548)
HCM MODULE
PN 72564 (72565)
FLT ON OFF
FLT
OFF
ON
CONN LABEL PN: 72534
A
B
LED PLOW LIGHT KIT PN: 39900
SERVICE KIT (PS) PN: 39902
SERVICE KIT (DS) PN: 39901
8
5
6
4
3
12
H
F
G
D
E
B
C
A
108967452311112
+
COMMON
BA
AB
14
13
BA
COMMON
COMMON
13 14 15 16 17 18 19 20
16
H
F
G
D
E
B
C
A
H
F
G
D
E
B
C
A
H
F
G
D
E
B
C
A
BAT (–)
BAT (+)
12
10
8
9
6
7
4
5
3
11
10896745231
12
11 12
NC
13
14
16151413
15
16
DRL RIGHT
PARK RIGHT
18 19 2017
12
2
1
COMMON
10A MINI
STYLE FUSES
BA
CONNECTION: FROM WIRE ON THE FLOAT SOLENOID COIL,
HYDRAULIC UNIT, TO YELLOW WIRE BREAKOUT AT THE Y
OF THE PLOW LIGHTING HARNESS.
PN: 72551 (72552)
BA
BA
D
F3
F1 F2
CB A DCB A DCB A
D
C
B
A
DCB A
BA
1
2
7
9
11
15
10
X1
BATT (+) IN
1 - LEFT DRL
2 - LEFT FP (PARK)
3 - LEFT LOW
4 - LEFT TURN
5 - LEFT HIGH
6 - COMMON
7 - EDGE VIEW
8 - RIGHT LOW
9 - RIGHT TURN
10 - RIGHT HIGH
11 - OEM PARK (RAM ONLY)
12 - EV SENSE
13 - NC
14 - COMMON
15 - NC
16 - NC
17 - NC
18 - NC
19 - RIGHT DRL
20 - RIGHT PARK
LED PLOW LIGHTS
NC
NC
NC
NC
COM
RIGHT HIGH
RIGHT LOW
LEFT HIGH
LEFT TURN
RIGHT PARK
RIGHT DRL
RIGHT TURN
LEFT LOW
X1 - EdgeView™ light input from
hydraulic unit to HCM.
EDGE VIEW SENSE IN
BLK/ORN
BLK/ORN
PNK
BRN
PUR
GRY
BLK
BLK/ORN
YEL
WHT
WHT/YEL
BLK/WHT
BLK/ORN
YEL
SP1
SP3
SP2
BRN
PNK
8 RED
8 BLK
25A
P5
BLK/WHT
WHT
WHT/YEL
BLK
BLK/ORN
GRY
BRN
PUR
P7
EDGE VIEW LIGHT
BLK/ORN
BLK/ORN
RIGHT LOW
RIGHT HIGH
LEFT HIGH
LEFT LOW
PNK
LTBLU
PNK
P2
BLK/ORN
P1
EDGE VIEW LIGHT
RED, 8AWG
Orange wire to OEM Park output
(RAM 6-wire system only)
J1J3
P1
P3
P2
BEL OUT
X2
SP1
SP2
SP3
LEFT PARK
LEFT DRL
P3
P4
SP4
X3
X1
ORN
RIGHT TURN
COM 2
RIGHT PARK
EDGE VIEW
RIGHT DRL
COM 1
BRN
PUR
PNK
WHT/YEL
BLK/ORN
BLK/ORN
YEL
BLK/WHT
RIGHT HIGH
RIGHT LOW
LEFT LOW
LEFT HIGH
COM 1
LEFT PARK
LEFT DRL
EDGE VIEW
LEFT TURN
COM 2
BLK
BRN
P6
SD 4 Halogen light system
TO VEHICLE
BATTERY
YEL
YEL
LEFT TURN
RIGHT TURN
RIGHT PARK
RIGHT DRL
LEFT DRL
LEFT PARK
COMMON
COMMON
COMMON
BRN
GRY
PNK
BLK/ORN
BLK/ORN
YEL
BLK
WHT
(continued on following page)

Table of Contents