EasyManua.ls Logo

SnowEx RDV V-Plow - Page 65

SnowEx RDV V-Plow
84 pages
Print Icon
To Next Page IconTo Next Page
To Next Page IconTo Next Page
To Previous Page IconTo Previous Page
To Previous Page IconTo Previous Page
Loading...
Lit. No. 30118, Rev. 00 June 15, 2020
65
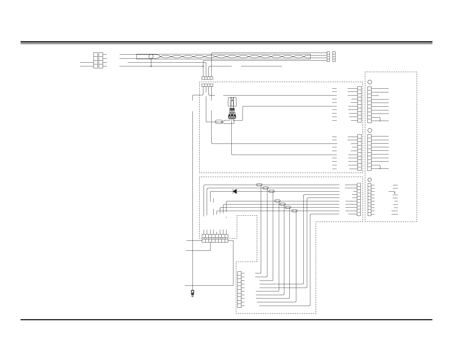
DUAL WIRE HARNESS: PN 72642
ISOLATION MODULE
K
J
H
G
F
E
D
B
C
A
WHT
BLK
BLK/ORN
WHT/YEL
BLK/WHT
PUR
GRY
BRN
LTBLU
BLU/ORN
P2
K
J
H
G
F
E
D
B
C
A
NC (SPARE)
86745231
86745231
A
B
C
D
E
F
G
H
J
K
A
LEFT_HI
LEFT_LOW
GND
RIGHT_HI
RIGHT_LO
RIGHT_TURN
LEFT_TURN
PARK_LIGHT
LT_COM
RT_COM
BB
AA
CC
DD
4
3
2
11
2
3
4
B
A
C
D
BAT (–)
BAT (+)
B
A
C
D
SWV-DC
12V
LEFT_HI
LEFT_COMMON
PARK_LIGHT
LEFT_TURN
LEFT_LOW
MODULE COMMON
1 - LEFT HIGH
2 - LEFT LOW
3 - MODULE COMMON
4 - NC (SPARE)
5 - LEFT COMMON
6 - PARK LIGHT
7 - LEFT TURN
8 - RIGHT TURN
RIGHT_TURN
BA
BA
BA
BA
BA
BA
BA
WHT
BLK
BLK/ORN
WHT/YEL
BLK/WHT
PUR
GRY
BRN
LTBLU
BLU/ORN
ORN
A
B
C
D
E
F
G
H
J
K
A
B
C
D
E
F
G
H
J
K
B
C
HI_IN
LT_COM
LT_COM
LO_OUT
LEFT_TURN
HI_OUT
CONTROL PWR IN
CONTROL PWR OUT
DRL IN
LO_IN
HI_OUT
PARK_LIGHTS
RIGHT_TURN
LO_OUT
MODULE PWR IN
LO_IN
HI_IN
VCC
RT_COM
RT_COM
K
G
J
H
E
F
D
B
C
A
K
G
J
H
E
F
D
B
C
A
SWV OUT
PWR IN
TURN IN
PARK IN
LOW IN
HIGH IN
HIGH OUT
LOW OUT
PWR IN
TURN IN
COM IN
ACC IN
HIGH IN
LOW IN
HIGH OUT
LOW OUT
COM IN
(BLUE WIRES)
(GREEN WIRES)
DRL IN
COM OUT
COM OUT
ACC IN
10A
CONTROL &
MODULE
FUSES
F1 F2
BA
COMMON
P3
P1
18 BLK
14 RED/GRN
18 RED
12 BLK
TO SWITCHED
ACCESSORY LEAD
ACC
J2
SP1
SP2
SP3
SP4
SP5
SP6
SP7
X1
D1
TYPICAL PLUG-IN HARNESS
INPUTS & OUTPUTS
TYPICAL PLUG-IN HARNESS
TO PLOW CONTROL
PLOW CONTROL HARNESS
FROM VEHICLE
CABLE ASSEMBLY
(continued from previous page)
HEADLAMPS: TYPICAL LED SCHEMATIC (continued from previous page)

Table of Contents