EasyManua.ls Logo

Soft dB SmartSMS 2 - Wiring

Default Icon
113 pages
Print Icon
To Next Page IconTo Next Page
To Next Page IconTo Next Page
To Previous Page IconTo Previous Page
To Previous Page IconTo Previous Page
Loading...
SmartSMS User Manual Soft dB inc.
User Manual p. 20
Note that turning a tap down one notch will not necessarily result in a 3 dB reduction below because
of other speakers’ contribution.
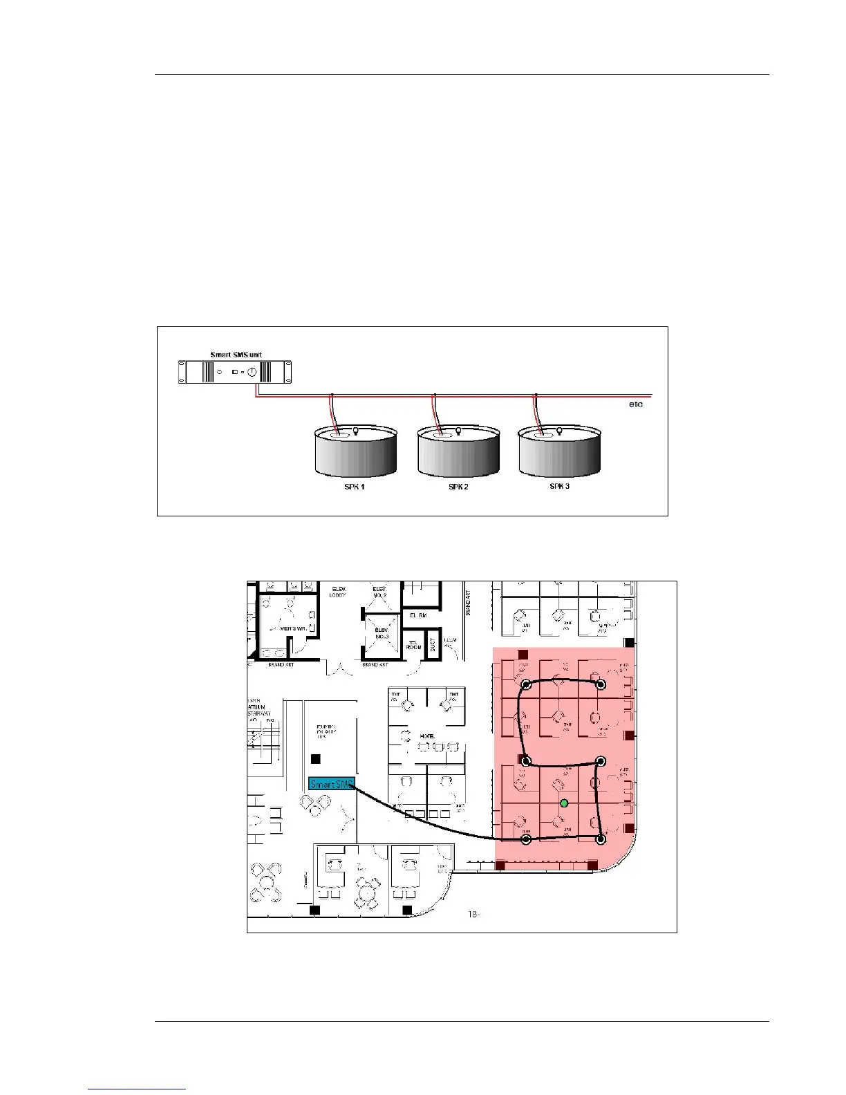
4.2.2 Wiring:
The SmartSMS amplifier is a constant voltage 25 Volt amplifier unit. The wiring of the loudspeaker
network is very simple. All the loudspeakers in one specific zone are wired in parallel, using a single
2-conductor wire for each zone. Any number of loudspeakers can be installed on a line, up to a
maximum of 32 for the 2W tap.
Figure 12 : Connection of SMS-STR loudspeakers
Figure 13 : A typical electrical connection zone

Table of Contents