EasyManua.ls Logo

Terramite TSS46 - Page 72

Terramite TSS46
94 pages
Print Icon
To Next Page IconTo Next Page
To Next Page IconTo Next Page
To Previous Page IconTo Previous Page
To Previous Page IconTo Previous Page
Loading...
4.2
WWW.TERRAMITE.COM/SAFETY
Charleston, WV/USA
USA 1.800.428.3772
Intl. 1 .304.776.4231
Read Operators Manual For Safety
PARTS MANUAL
Hydraulics
&
Copyright © 2007 Terramite Corporation
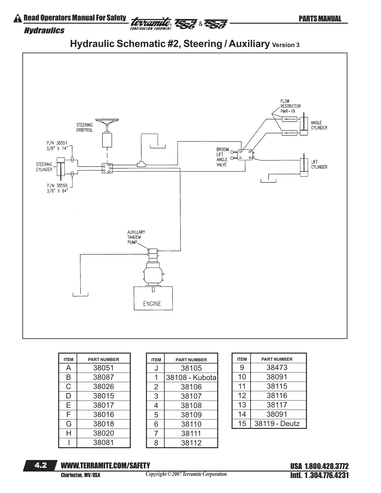
ITEM PART NUMBER
A 38051
B 38087
C 38026
D 38015
E 38017
F 38016
G 38018
H 38020
I 38081
ITEM PART NUMBER
J 38105
1 38108 - Kubota
2 38106
3 38107
4 38108
5 38109
6 38110
7 38111
8 38112
ITEM PART NUMBER
9 38473
10 38091
11 38115
12 38116
13 38117
14 38091
15 38119 - Deutz
Hydraulic Schematic #2, Steering / Auxiliary Version 3
Courtesy of Machine.Market

Table of Contents

Related product manuals