EasyManua.ls Logo

Trane RTHD - Page 32

Trane RTHD
184 pages
Print Icon
To Next Page IconTo Next Page
To Next Page IconTo Next Page
To Previous Page IconTo Previous Page
To Previous Page IconTo Previous Page
Loading...
32 RTHD-SVX01D-EN
Installation Mechanical
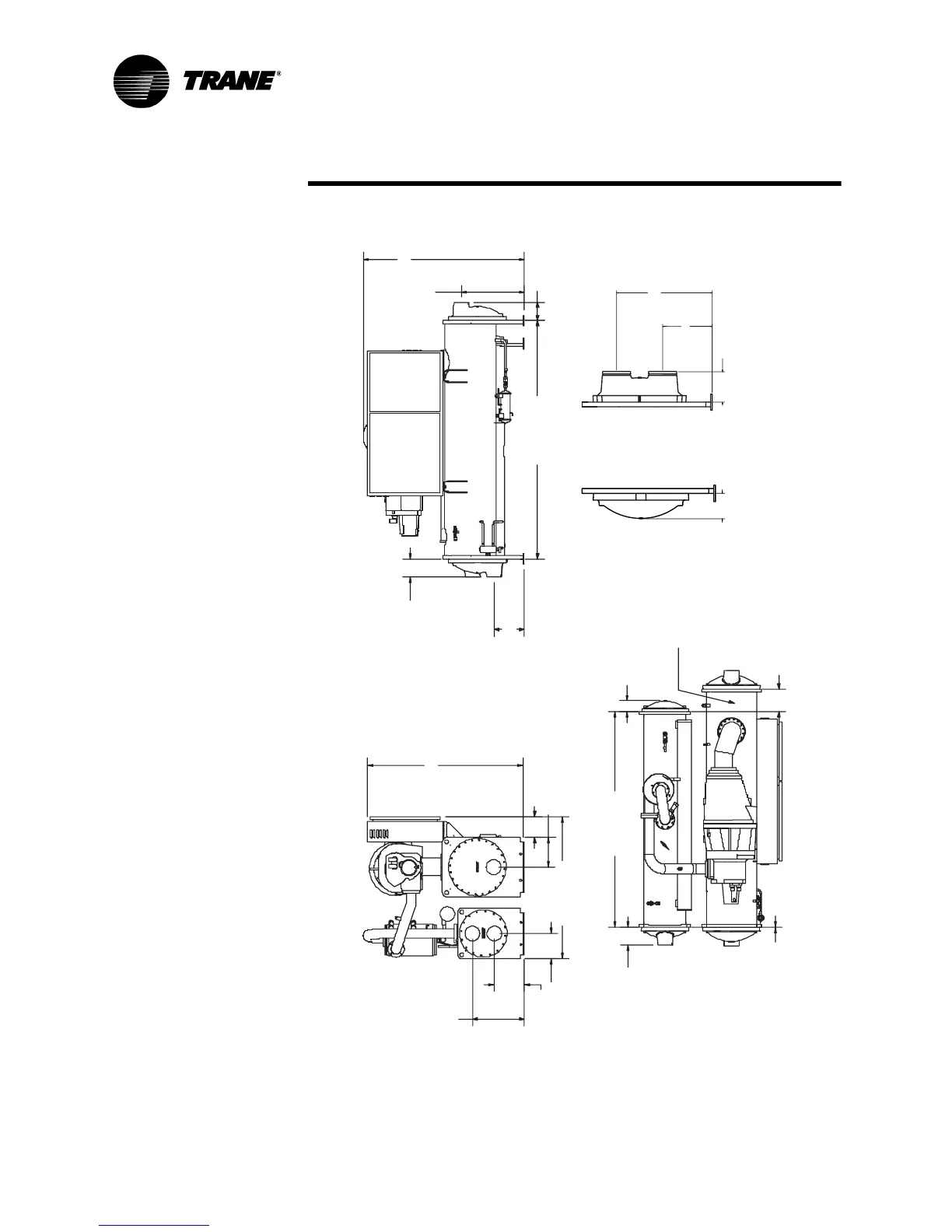
Figure 9 Condenser and Evaporator Water Connections -BBB
23.50[597mm]
13.50 [343 mm]
11.50[292mm]
64.34 [1634 mm]
13.35 [339 mm]
9.5 0 [2 41 mm ]
70.30 [1786 mm]
13.84 [351 mm]
8. 38 [2 13 m m]
107.66 [2734 mm]
Standard 3 Pass
28.59 [726mm]
8. 38 [2 13 m m]
75.0 [1905 mm]
8.00 [203 mm] for 150psi
8.50 [216 mm] for 300psi
97.51 [2477 mm]
4.9 7 [1 26 mm ] fo r 150 ps i
5.4 7 [1 39 mm ] fo r 300 ps i
0.08 [2 mm]
10.23[260mm]
OUT
IN
IN
COND
EV AP
CONDENSER
OIL S UMP
IN
OUT
EVAPORATOR
EVAPORATOR
2 Pass Evap Connection Configuration
(left or right hand) Depending on Water Inlet
8.94 [227 mm]
15.09 [383 mm]
27.34 [694mm]
6.87 [174 mm]

Table of Contents

Other manuals for Trane RTHD

Related product manuals