EasyManua.ls Logo

Trane RTHD - Page 33

Trane RTHD
184 pages
Print Icon
To Next Page IconTo Next Page
To Next Page IconTo Next Page
To Previous Page IconTo Previous Page
To Previous Page IconTo Previous Page
Loading...
RTHD-SVX01D-EN 33
Installation Mechanical
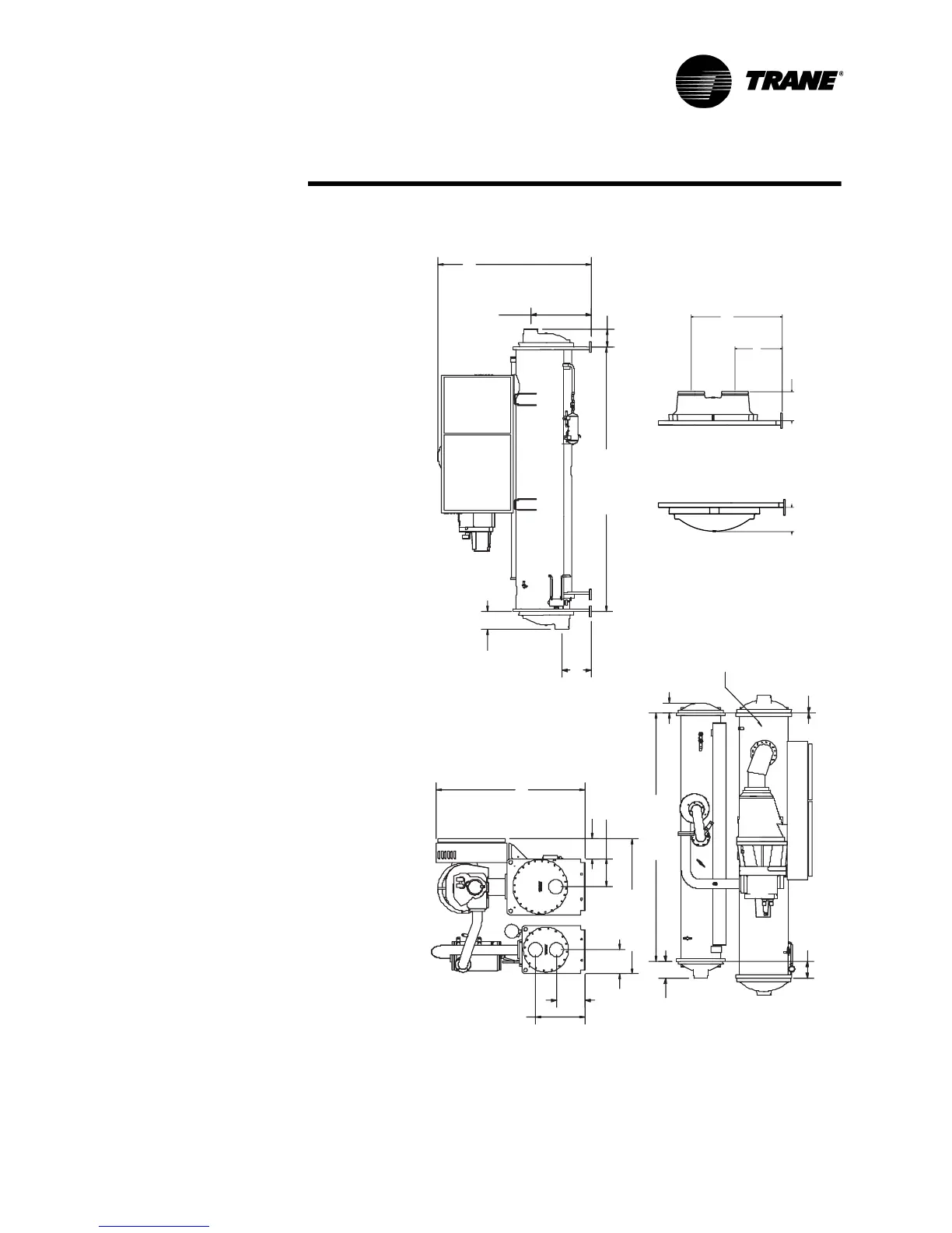
Figure 10 Condenser and Evaporator Water Connections -BCD
23.50 [597 mm]
13.50 [343mm]
11.50[292mm]
13.35[339mm]
9.50 [241 mm]
64.34 [1634 mm]
13.84[351mm]
8.38 [213 mm]
125.91 [3198 mm]
St anda rd 3 Pa ss
8. 38 [2 13 mm]
28.59[726 mm]
7 0. 80 [ 1798 mm]
11 8. 00 [ 2997 mm]
8.00 [203 mm] for 150 psi
8.50 [216 mm] for 300 psi
7.91 [201mm]
0.01[0 mm]
COND
EV AP
IN
OUT
IN
EVAP ORAT OR
CONDENSER
OIL SUM P
IN
4.97 [126 mm] for 150 psi
5.47 [139 mm] for 300 psi
OUT
75.0 [1905 mm]
EVAP ORAT OR
2 Pass Evap Connection Configuration
(left or right hand) Depending on Water Inlet
8.94 [227 mm]
15.09 [383 mm]
27.34 [694 mm]
7.87 [174 mm]

Table of Contents

Other manuals for Trane RTHD

Related product manuals