EasyManua.ls Logo

Trane RTHD - Starter Module Operation; Y-Delta and Solid State Starter Sequences

Trane RTHD
184 pages
Print Icon
To Next Page IconTo Next Page
To Next Page IconTo Next Page
To Previous Page IconTo Previous Page
To Previous Page IconTo Previous Page
Loading...
34 RTHD-SVX01D-EN
Installation Mechanical
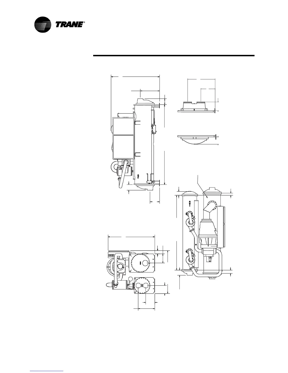
Figure 11 Condenser and Evaporator Water Connections - CEF
25.88 [65 7 m m]
14.13 [359 mm]
12.49[317mm]
67.54 [17 15 mm]
14.50 [368 mm]
5.29 [134 mm]
73.44 [1865 mm]
14.88 [37 8 m m]
9.06 [230 mm]
125.91 [31 98 mm]
St anda rd 3 Pa ss
30.13 [76 5 mm ]
9.06 [230 mm]
77.4 [1966 mm]
4.84 [123 mm]
3.07 [78 mm]
6.00 [153 mm] for 150 psi
6.50 [165 mm] for 300 psi
8.00 [203 mm] for 1 50 p si
8.50 [216 mm] for 3 00 p si
118.00 [2997 m m]
OUT
IN
IN
OUT
EVAPORATOR
OI L SUMP
CONDENSER
IN
COND EVAP
EVAPORATOR
2 Pass Evap Connection Configuration
(left or right hand) Depending on Water Inlet
9.42 [239 mm]
15.38 [391 mm]
29.63 [753 mm]
7.67 [195 mm]

Table of Contents

Other manuals for Trane RTHD

Related product manuals