EasyManua.ls Logo

Trane RTHD - Page 35

Trane RTHD
184 pages
Print Icon
To Next Page IconTo Next Page
To Next Page IconTo Next Page
To Previous Page IconTo Previous Page
To Previous Page IconTo Previous Page
Loading...
RTHD-SVX01D-EN 35
Installation Mechanical
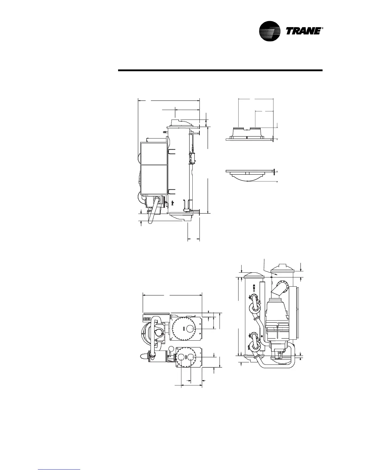
Figure 12 Condenser and Evaporator Water Connections - CDE/DDE/EDE
14.13 [35 9 m m]
25.88[657mm]
67.58 [17 17 m m]
14.50 [36 8 mm ]
5.29 [134 mm]
12.49[317mm]
73.44 [18 65 m m]
97.50 [24 77 mm]
8.0 0 [203 mm] for 1 50 psi
8.5 0 [216 mm] for 3 00 psi
2.56 [65 m m]
7.59 [193 mm]
6.00 [153 m m] for 15 0 p si
6.50 [166 m m] for 30 0 p si
14.88[378mm]
8.84 [225 m m]
107.66 [2734 mm ]
Standard 3 Pass
30.13 [765 mm]
9.06 [230 m m]
77.4 [1 966 mm]
OUT
IN
IN
COND
EVAP
IN
EVAPORATOR
OUT
CONDENSER
OI L SUMP
EVAPORATOR
2 Pass Evap Connection Configuration
(left or right hand) Depending on Water Inlet
9.50 [241 mm]
15.38 [391 mm]
29.63 [753 mm]
7.67 [195 mm]

Table of Contents

Other manuals for Trane RTHD

Related product manuals