EasyManua.ls Logo

Trane RTHD - Page 36

Trane RTHD
184 pages
Print Icon
To Next Page IconTo Next Page
To Next Page IconTo Next Page
To Previous Page IconTo Previous Page
To Previous Page IconTo Previous Page
Loading...
36 RTHD-SVX01D-EN
Installation Mechanical
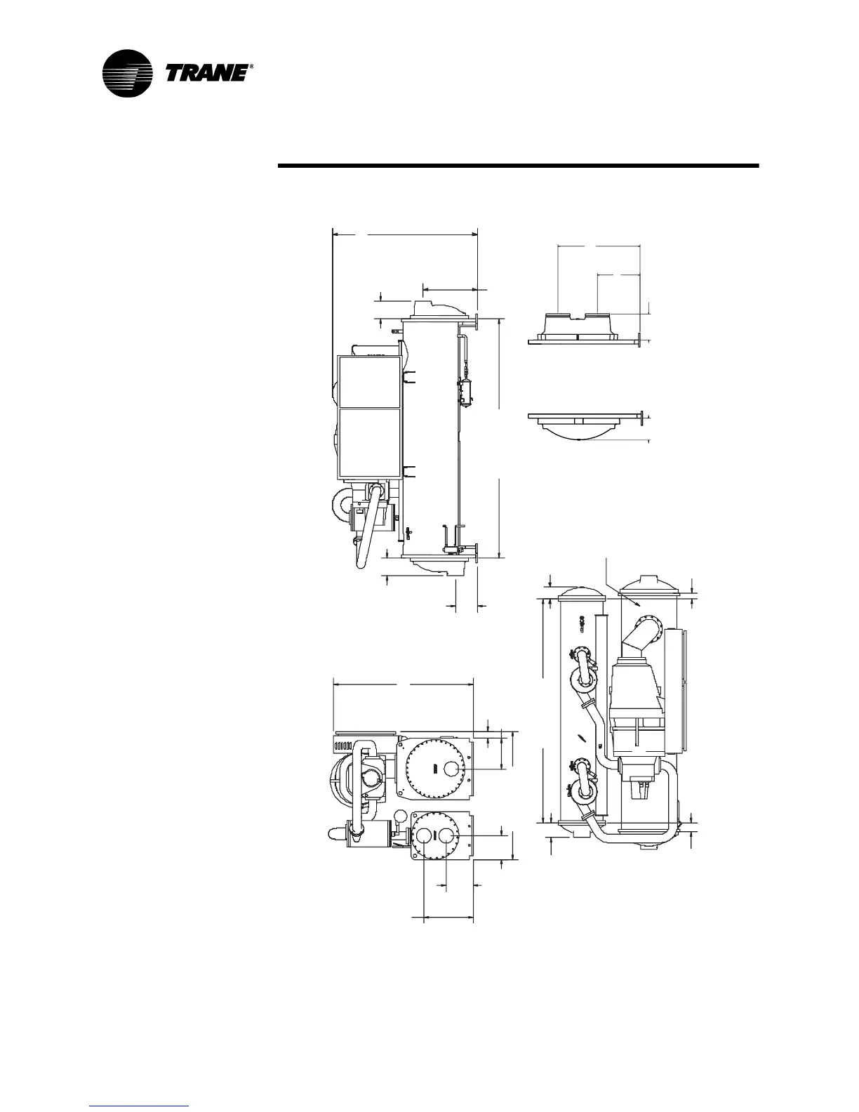
Figure 13 Condenser and Evaporator Water Connections - DFF/EFF/CFF
25.88[657mm]
12.49[317mm]
67.54 [1716 mm]
16.20[411mm]
3.59 [91 mm]
73.52 [18 67 m m]
11.43 [29 0 m m]
9.16 [233 mm]
125.91 [3198 m m]
Standard 3 Pass
28.43 [722 mm]
9.38 [238 mm]
14.13[359mm]
4.87 [124 mm] 3.0 4 [77 m m]
6.15 [156 mm] for 1 50 p si
6.65 [169 mm] for 3 00 p si
8.0 0 [203 mm ] for 15 0 psi
8.5 0 [216 mm ] for 30 0 psi
118.00 [2997 mm]
77.0 [1956 mm]
OUT
IN
IN
COND
EV AP
IN
EVAPORA TOR
OU T
OIL S UMP
CONDENSER
EVAPORATOR
2 Pass Evap Connection Configuration
(left or right hand) Depending on Water Inlet
10.88 [276 mm]
12.55 [319 mm]
27.30 [693 mm]
8.71 [221 mm]

Table of Contents

Other manuals for Trane RTHD

Related product manuals