EasyManua.ls Logo

Trane RTHD - Page 37

Trane RTHD
184 pages
Print Icon
To Next Page IconTo Next Page
To Next Page IconTo Next Page
To Previous Page IconTo Previous Page
To Previous Page IconTo Previous Page
Loading...
RTHD-SVX01D-EN 37
Installation Mechanical
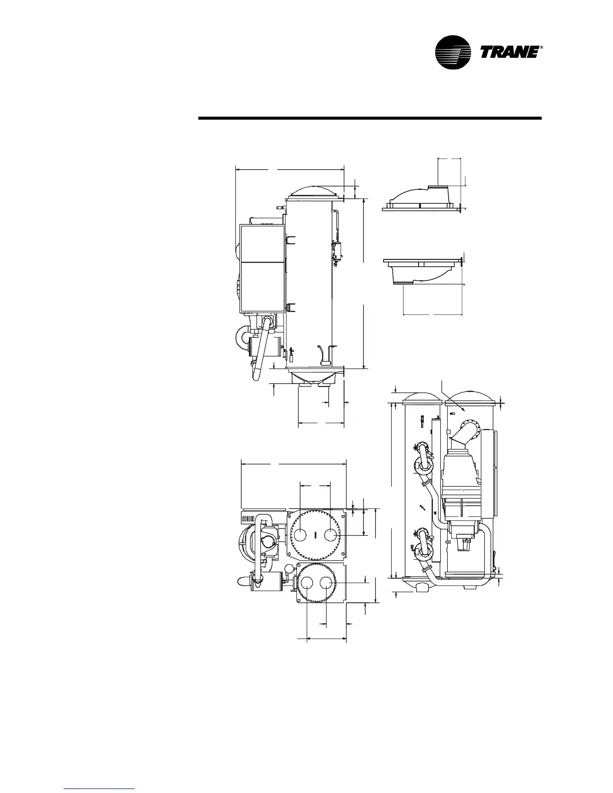
Figure 14 Condenser and Evaporator Water Connections - DGG/EGG
69.72 [1771 mm]
14 .7 0 [37 3 mm]
1.18 [30 mm]
18.63 [473mm]
9.35 [238 mm]
125.91 [3198 mm]
Standard 4 Pass
33.89 [861 mm]
10 .8 8 [27 6 mm]
9.88 [251 mm] for 300 psi
9.13 [232 mm] for 150 psi
129.80 [3297 mm]
7. 62 [1 94 mm] fo r 30 0 ps i
7. 25 [1 84 mm] fo r 15 0 ps i
0.67 [17 mm]
3.22 [82 mm]
77.29 [1963 mm]
81.0 [2057 mm]
OUT
IN
COND
EVAP
OUT
IN
EVAPORATOR
CONDENSER
OIL SUMP
22.50 [571mm]
29.02[737mm]
14.73 [374mm]
IN
OUT
11.39 [289 mm]
EVAPORA TOR
]m
m
1
2
3[
4
6.
2
1
]mm
4
1
3[
8
3.
2
1
]mm 928[ 46.23
]m
m
2
13
[
92
.
21
2 Pass Evap Connection Configuration
(left or right hand) Depending on Water Inlet

Table of Contents

Other manuals for Trane RTHD

Related product manuals