EasyManua.ls Logo

Unique CU Series - Installing the Wall Mounted Units; Wiring Diagrams - Indoor and Outdoor Units

Default Icon
108 pages
Print Icon
To Next Page IconTo Next Page
To Next Page IconTo Next Page
To Previous Page IconTo Previous Page
To Previous Page IconTo Previous Page
Loading...
- 52 -
8.2 Installing the Wall Mounted Units and the Remote Control
Remove all control components from their packaging.
Place the control box on the indoor unit service door, or up to 1.5 m. from the unit.
The box should be conveniently located for access by service personnel. Protect both
the control box and the electrical connections from water and high humidity.
Install the in-room wall mounted units. For each unit repeat the following procedure:
Separate the front panel from the back panel by depressing the tongue lock
located in the upper part of the unit.
Push the back panel out.
Line the back panel up against the wall or against any other flat surface onto
which it is to be mounted. Drill holes and use appropriate fixing screws to
fasten the panel to its location.
Complete the electrical connections according to the suitable electrical wiring
diagrams.
Close back the covers of the units to their base.
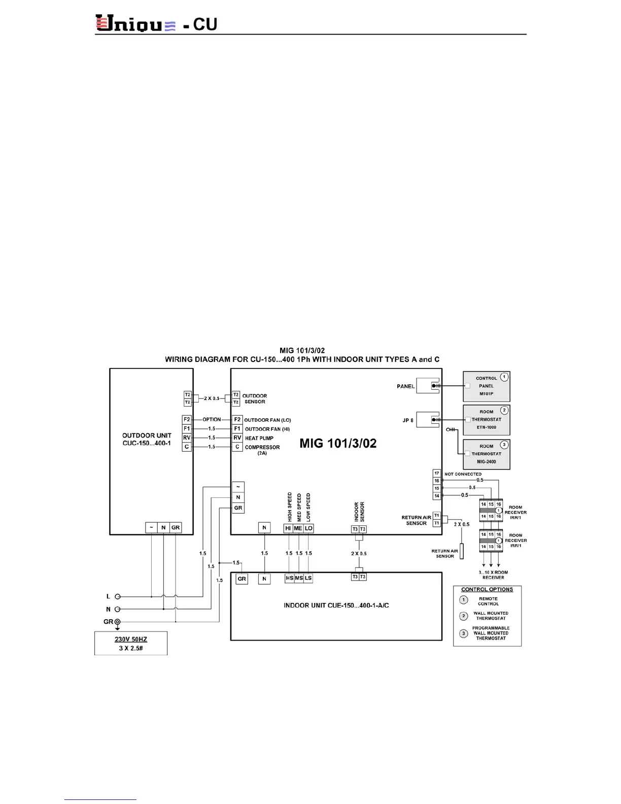
8.3 Wiring Diagrams - Indoor and Outdoor Units.

Table of Contents

Related product manuals