EasyManua.ls Logo

V2 JET-24V - Use Limits

V2 JET-24V
Print Icon
To Next Page IconTo Next Page
To Next Page IconTo Next Page
To Previous Page IconTo Previous Page
To Previous Page IconTo Previous Page
Loading...
ENGLISH
22
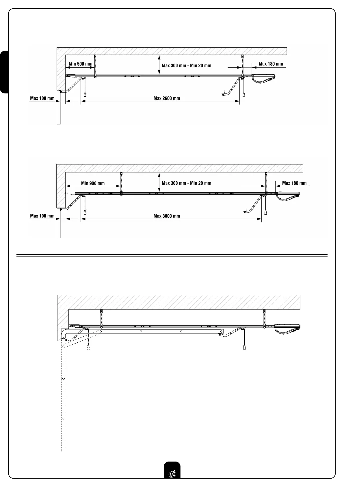
USE LIMITS
J
ET-24V can automate sectional doors max 2,6 m high, balanced doors max 2,6 m and counterweight balanced door max 2,8 m. Take
into consideration in order to install properly.
In order to automate higher doors it is necessary to install the mounting extension J1.
Take into consideration in order to install properly.
SECTIONAL DOORS: max 2,6 m high.
The mounting extension J1 allows automation of sectional doors up to max 3 m.

Other manuals for V2 JET-24V

Related product manuals