EasyManua.ls Logo

V2 JET-24V - Page 78

V2 JET-24V
Print Icon
To Next Page IconTo Next Page
To Next Page IconTo Next Page
To Previous Page IconTo Previous Page
To Previous Page IconTo Previous Page
Loading...
PORTUGUÊS
76
LIMITES DE EMPREGO
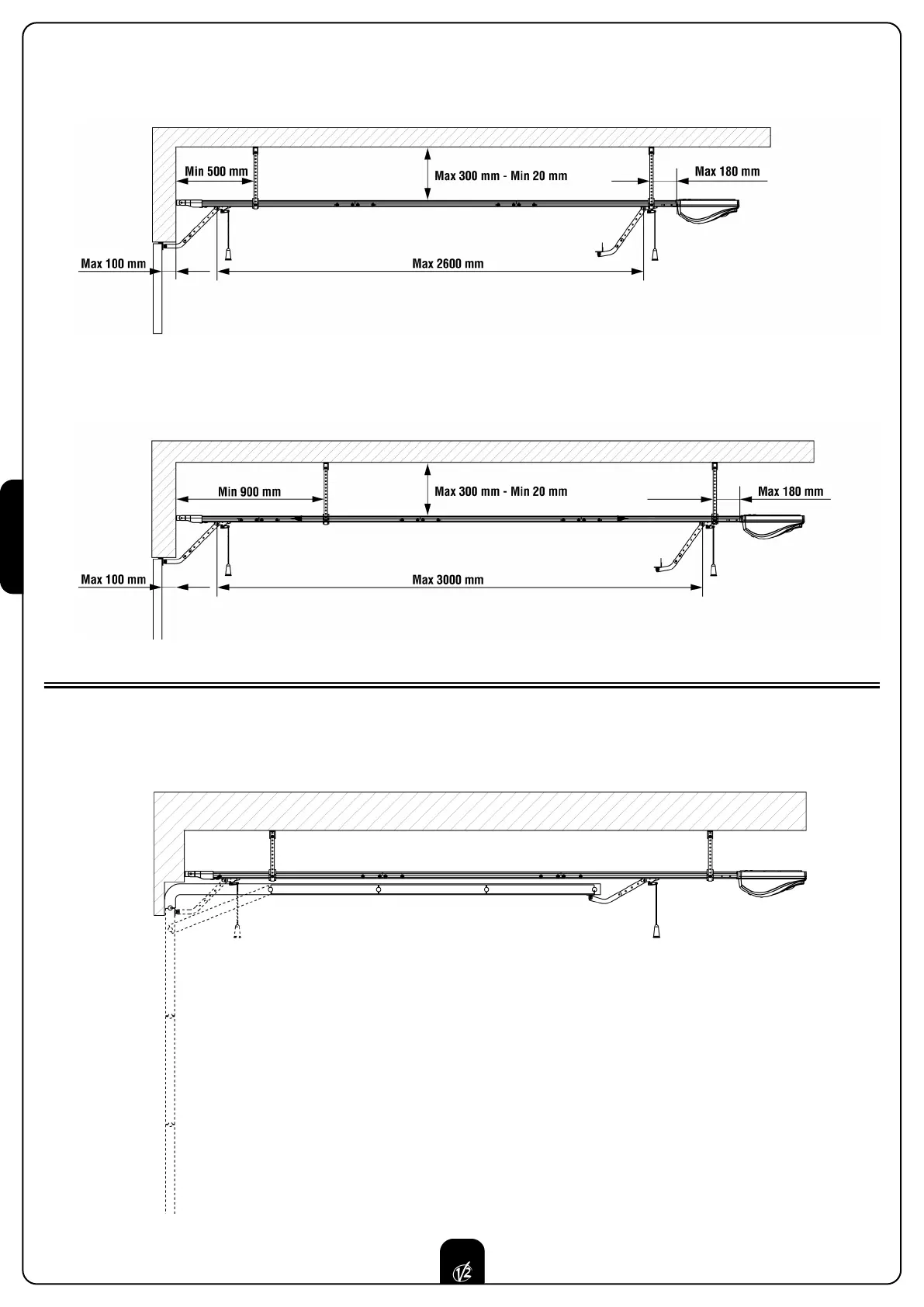
JET650 é capaz de automatizar portas seccionais com altura máxima até 2,6 m, portas basculantes de molas até 2,6 m e portas
basculantes com contrapesos até 2,8 m. Respeitar as seguintes medidas para o bom êxito da instalação.
Para automatizar portas com alturas superiores é necessário instalar a extensão J1.
Respeitar as seguintes medidas para um bom êxito da instalação.
PORTA SECCIONAL: altura máxima 2,6 m.
Utilizando a extensão J1 é possível automatizar portas seccionais com altura máxima de até 3m.

Other manuals for V2 JET-24V

Related product manuals