EasyManua.ls Logo

Valor H6 - Page 17

Default Icon
102 pages
Print Icon
To Next Page IconTo Next Page
To Next Page IconTo Next Page
To Previous Page IconTo Previous Page
To Previous Page IconTo Previous Page
Loading...
17
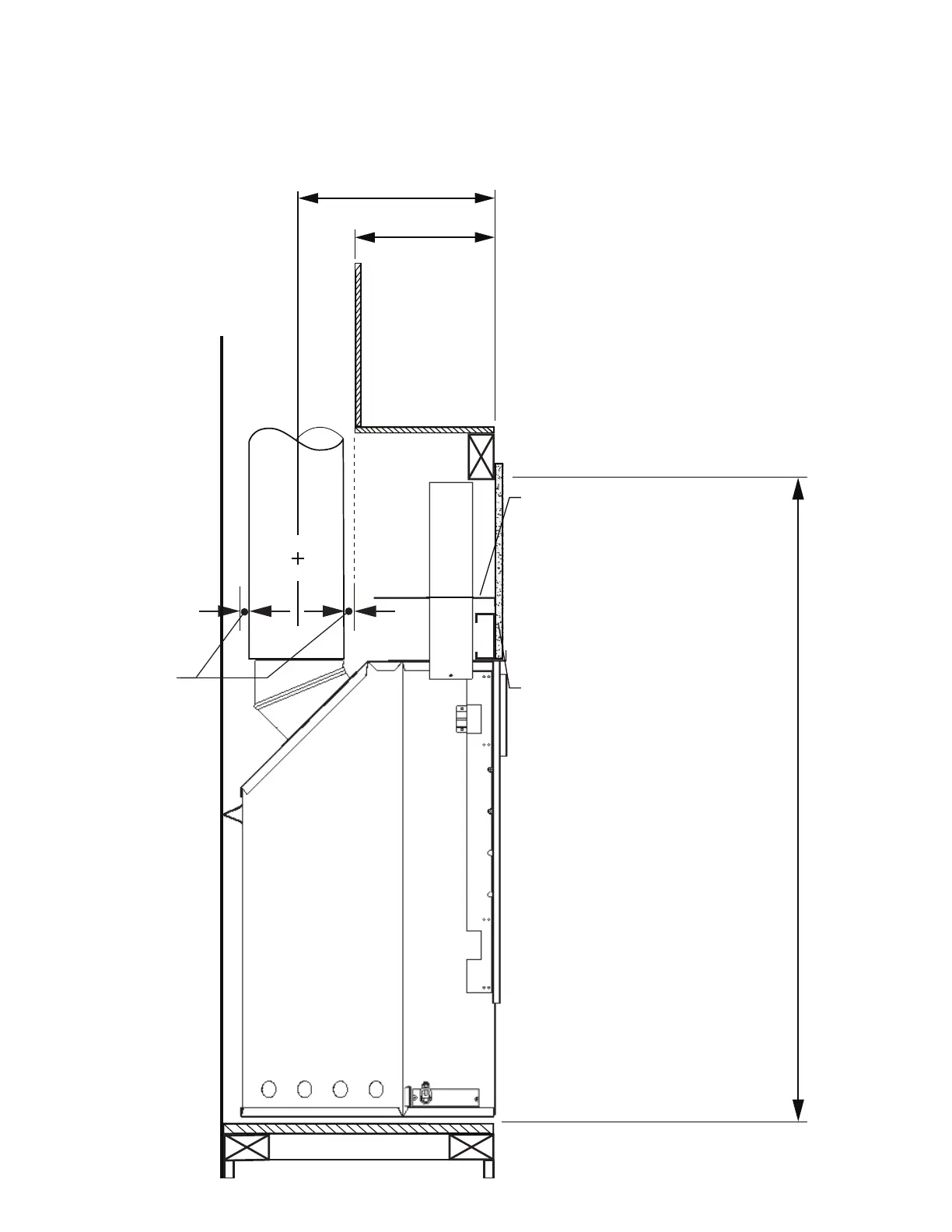
48” [1219 mm] to underside of combustible cavity
Min. 1”
[26 mm]
clearance to
combustibles
around
vertical
vent pipe
Approx. 11-1/4”
[286 mm]
from back
surface of
ZDOOȴQLVKWR
front surface
of appliance
case w/no
YHQWR΍VHW
15-5/8” [397 mm]
BUILT-IN RECESS, top outlet
6WDQGR΍KHDWVKLHOG
required ZLWKEXLOWLQ
recess in wall directly
above appliance.
1RWHΖI+HDW6KLIWLVXVHGWKH
KHDWVKLHOGLVQRWUHTXLUHG
ȋ>PP@WKLFN
non-combustible
board
Built-In Recess Above FireplaceTop Outlet
Planning Framing

Related product manuals