EasyManua.ls Logo

Valor H6 - Combustible Clearances

Default Icon
102 pages
Print Icon
To Next Page IconTo Next Page
To Next Page IconTo Next Page
To Previous Page IconTo Previous Page
To Previous Page IconTo Previous Page
Loading...
11
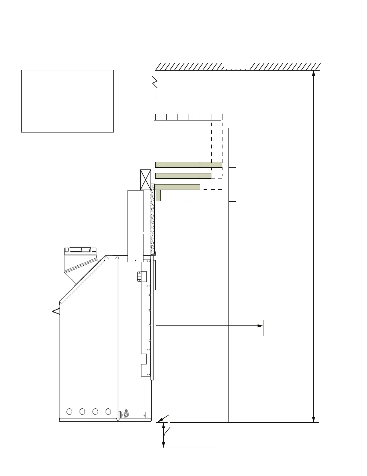
See Framing pages 14-16 for details on the hearth
Bottom of Unit
021” 4” 6” 8” 10” 12”
Do not put
furniture or objects
within 36” [914 mm]
of front of appliance
Mantel Projection
(from Face of Non-Combustible Board)
Mantel
Height
(from
Bottom
of Unit)
Ceiling
65” Min. to Ceiling
52”
50”
48”
46”
4” minimum to exposed
FRPEXVWLEOHȵRRURUKHDUWK
Planning Combustible Clearances
NOTE
Use of optional HeatShift
System affects mantel and
hearth clearances. See
Appendix D - HeatShift System
pages 79–98.
Combustible MantelLeft Side View

Related product manuals