EasyManua.ls Logo

VAMP 257 - Page 56

VAMP 257
194 pages
Print Icon
To Next Page IconTo Next Page
To Next Page IconTo Next Page
To Previous Page IconTo Previous Page
To Previous Page IconTo Previous Page
Loading...
VAMP 257 Feeder and motor manager
Technical description
VAMP Ltd
14
VAMP 24h support phone : +358 (0)20 753 3264
VM257.EN002
Limitations:
The maximum measured secondary current is 250 A. This
limits the scope of inverse curves when the setting is more than
12.5 A.
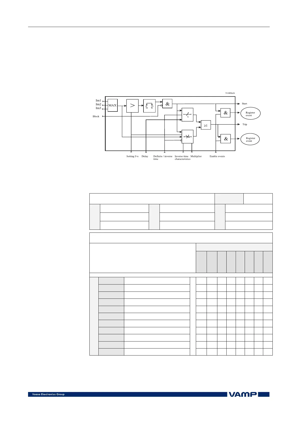
Figure 2.3.1-1 shows a functional block diagram of the I> stage
of the overcurrent function.
Figure 2.3.1-1. Block diagram of the three-phase overcurrent stage I>
Setting parameters of overcurrent stages:
I>, I>>, I>>> (50/51)
Pickup setting Unit:
xI
mode
I> 0.10 ... 5.00 1.20
I>> 0.10 … 20.00 2.50
Param.
I>>>
Range
0.1 … 40.00
Default
5.00
Operation delay selection (only for I>)
Curve
Curve
Type
A…E
- curve family selection
- delay type selection
- formula parameters
DT
IEC
IEEE
IEEE2
RI
Prg1
Prg2
Prg3
DT
Definite time
X
NI
Normal inverse
X X
VI
Very inverse
X X X
EI
Extremely inverse
X X X
LTI
Long time inverse
X X
LTEI
Long time extremely inverse
X
LTVI
Long time very inverse
X
MI
Moderately inverse
X X
STI
Short time inverse
X
STEI
Short time extremely inverse
X
Type
RI
X

Table of Contents

Related product manuals