EasyManua.ls Logo

Vertical Express LD-16 - Page 39

Vertical Express LD-16
116 pages
Print Icon
To Next Page IconTo Next Page
To Next Page IconTo Next Page
To Previous Page IconTo Previous Page
To Previous Page IconTo Previous Page
Loading...
LD-16 Door Operator - Modernization Existing Cab Header Installation
October 2021 - 88420 v.1.0
31
Universal MOD Kit
(continued)
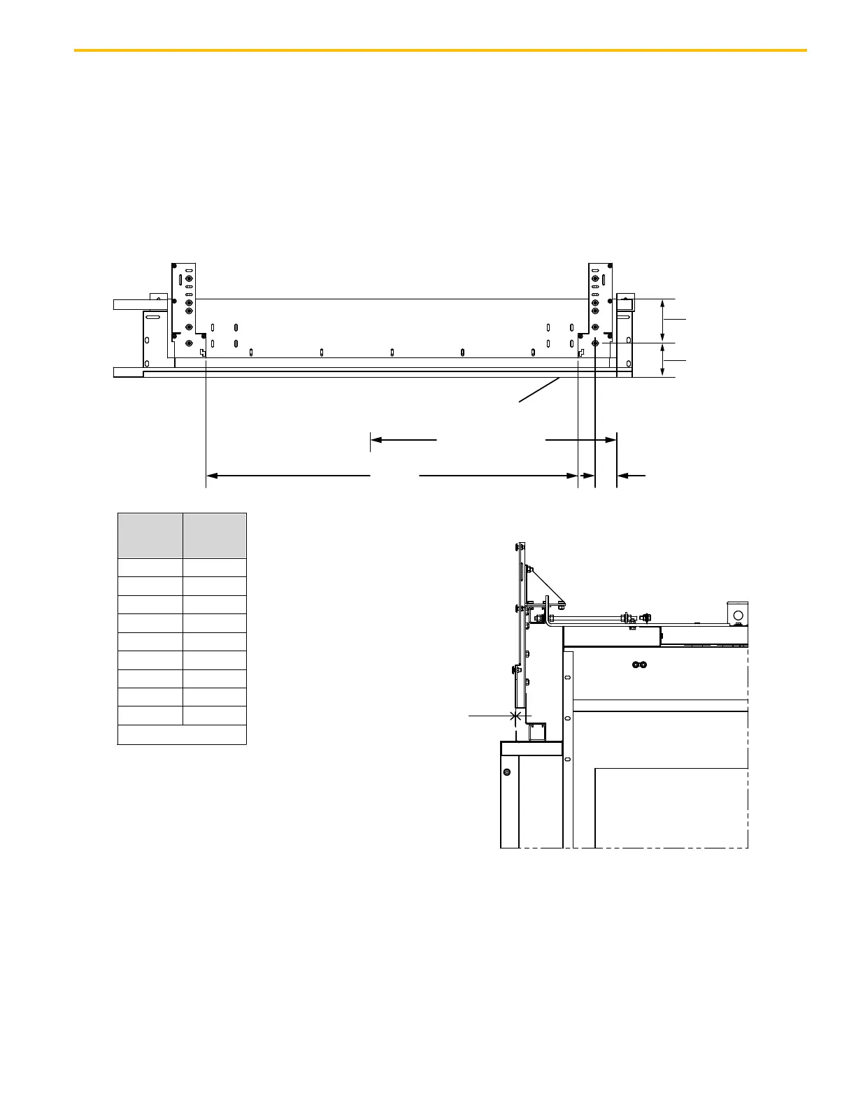
6. Install the fixing brackets per the applicable door operator.
Single-Speed: Figure 26.
Two-Speed: Figure 27 on page 32.
Center-Opening: Figure 28 on page 33.
Figure 26 - Single-Speed Fixing Brackets
SS
Clear
Opening
Dim. B
32
34
36
38
40
42
44
46
48
32
СШМ
47
СШМ
51
СШМ
55
СШМ
59
СШМ
63
СШМ
67
СШМ
71
СШМ
75
СШМ
B
Clear Opening
5ƤƧƭЈЇ"
(for ¾" door lap)
13ƠƭЈЇ"
(for ¾" door lap)
Top of Clear Opening
3ϻШІ Ћ " – 3
¾
"
2ÛôûÔÔĦđÃÛ»¥ð¦Ò°ûô
¼"
ÃÛºðáÛûáº¦¥ûðÛôáÚ
to give
ƧƭІЋ
"
slow door
ðĀÛÛÃÛ»¦Ô°ðÛ¦°ǥííðáđnjǦ
ǥÔÔ¬ÃÚnjÃÛÃÛ¦À°ôǦ
Dimensions shown are reference points and apply to TKE or Dover equipment ONLY.

Table of Contents