EasyManua.ls Logo

Vertiv Liebert CRV Plus - Page 49

Vertiv Liebert CRV Plus
98 pages
Print Icon
To Next Page IconTo Next Page
To Next Page IconTo Next Page
To Previous Page IconTo Previous Page
To Previous Page IconTo Previous Page
Loading...
Vertiv | Liebert CRV+ | User Manual 39
Connecting the Power cable of the Indoor unit
The specific location of the power port of the indoor unit is depicted in Figure 2-28. Connect the
supply terminals L1-L3,N and PE to their respective counterparts of the external power supply
res
pectively.
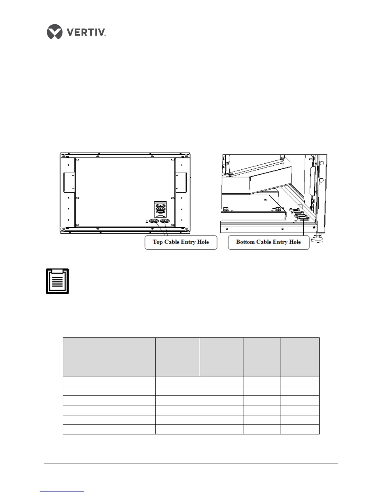
Fix the input cables to the cable clamp, located on the inner side panel of the unit. The top cable
entry hole and bottom cable entry hole as depicted in Figure 2-29.
For the cable specifications, refer to the full-load current (FLA) described in the table within
Listing 2.12.
Figure 2-29 Top and bottom cable entry holes
The cable sizes must strictly meet and adhere to the local wiring regulations and protocols as
it supersedes every type of connection.
Listing 2.12
Full Load current (unit A)
Model
Standard
model
Standard
model with
electric
heater
Standard
model with
humidifier
Standard
model with
electric
heater &
humidifier
CR012HA1380S02E10000PV000 19.1 19.1 / /
CR012RA1380S12E10000PV000 19.1 / / /
CR025HA1380S02E10000PV000 24.9 24.9 26 26
CR025RA138SS12E10000PV000 26 / / /
CR035HA1380S02E10000PV000 31.6 46.6 42.3 46.6
CR035RA138SS12E10000PV000 46.6 / / /

Table of Contents

Related product manuals