EasyManua.ls Logo

Vertiv Liebert EXM - Figure 26 UPS Main Components-Typical 250 Kva Unit

Vertiv Liebert EXM
101 pages
Print Icon
To Next Page IconTo Next Page
To Next Page IconTo Next Page
To Previous Page IconTo Previous Page
To Previous Page IconTo Previous Page
Loading...
Vertiv | Liebert® EXM
50-250kVA, 480V, 60Hz User Manual | 45
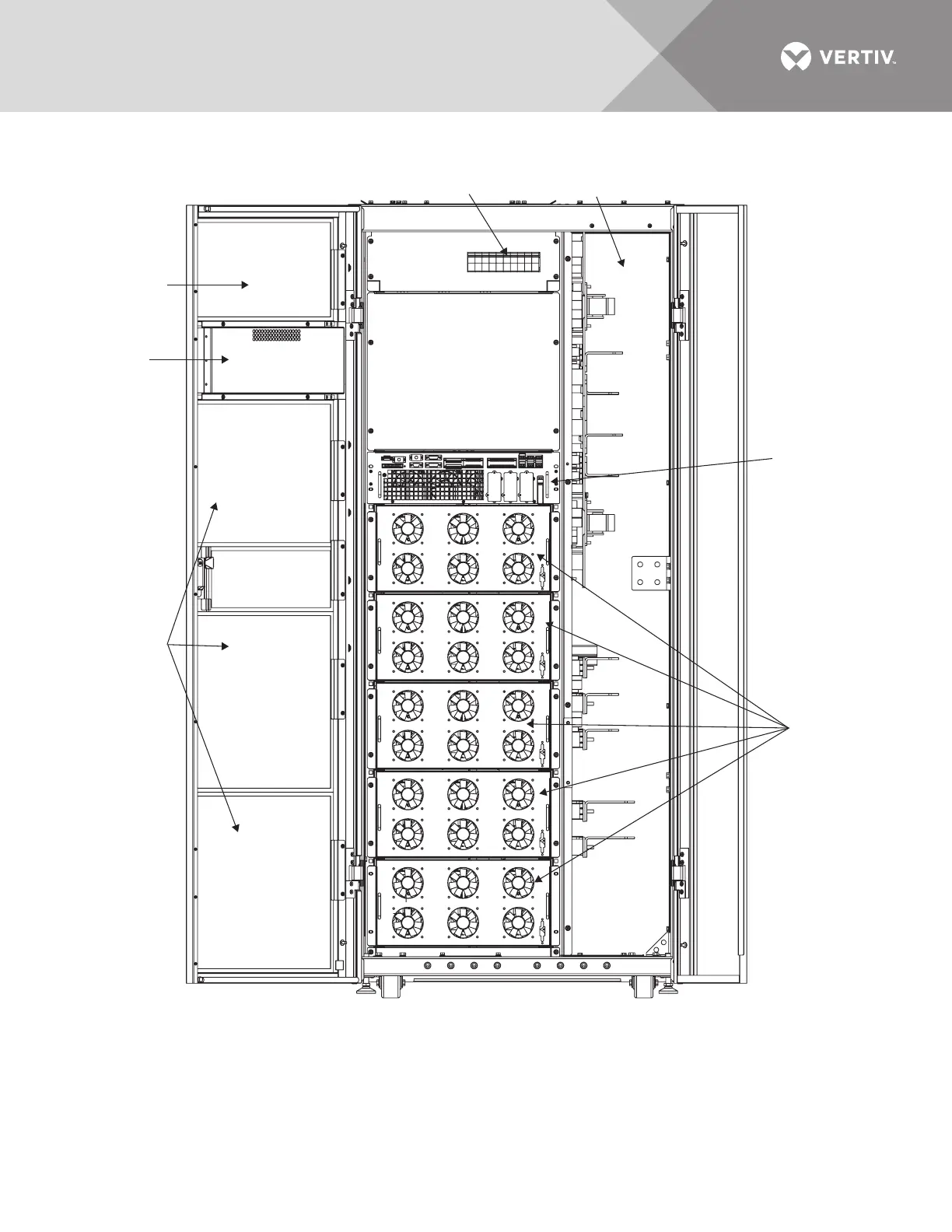
Figure 26 UPS main components—Typical 250kVA unit
Replaceable
Air Filters
Replaceable
Air Filter
Control
Panel (Back)
Power
Modules
Fuse Holders
Input/Output Cabinet
Static Bypass
Assembly

Table of Contents

Related product manuals