EasyManua.ls Logo

Vertiv Liebert SmartAisle2 - Page 68

Vertiv Liebert SmartAisle2
141 pages
Print Icon
To Next Page IconTo Next Page
To Next Page IconTo Next Page
To Previous Page IconTo Previous Page
To Previous Page IconTo Previous Page
Loading...
Vertiv | SmartAisle2 | User Manual 59
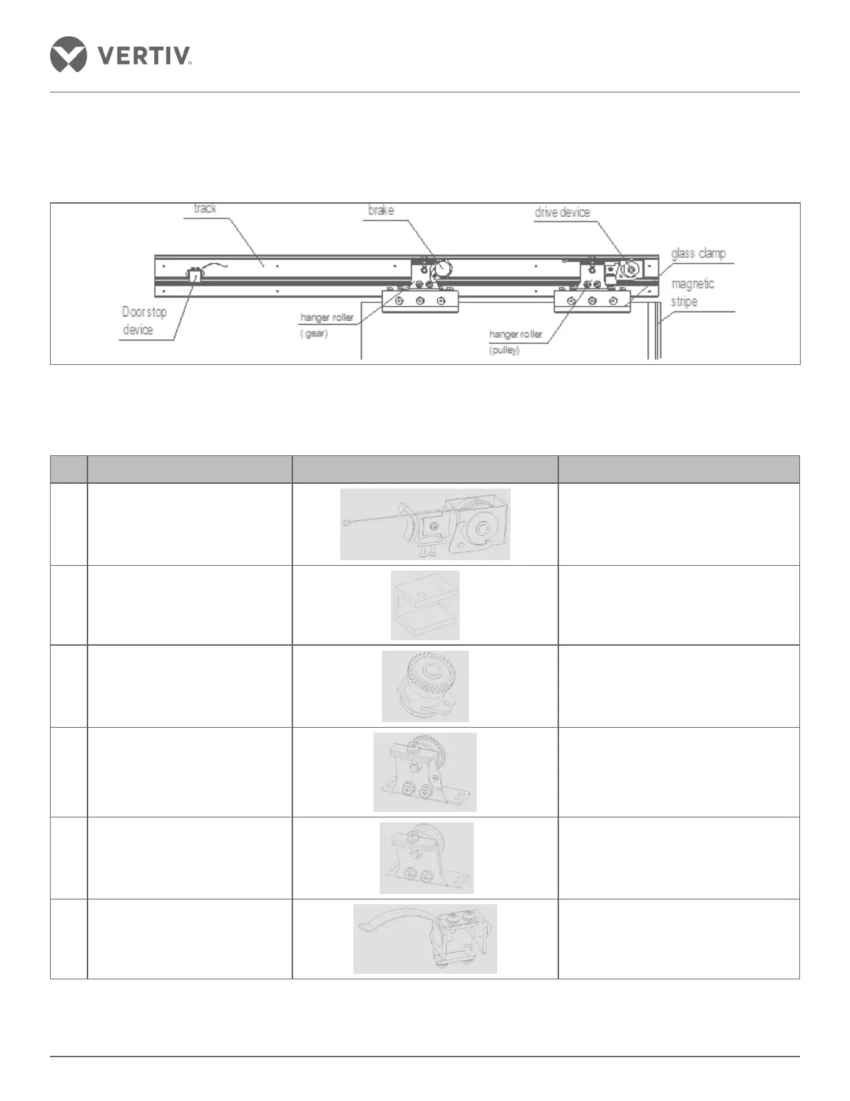
Installation
The mechanical door system is a semi-automatic door which requires two sets of door rails. The door opening is
by manual operation and door closure is automatic. The door glass has exterior and interior handles with a glass
thickness of 12 mm which have handle mounting holes.
Figure 2-56 Mechanical sliding door configuration
Semi-automatic door components are listed in Table 2-4.
Table 2-4 Semi-automatic door components
No. Part Name Icon Number (1 set)
1 Door Closing Spring
1
2 Tension lock plate
1
3 Hydraulic retarder
1
4 Gear wheels hanging
1
5 Hanging round group
1
6 Normally open sheet
1

Table of Contents

Related product manuals