EasyManua.ls Logo

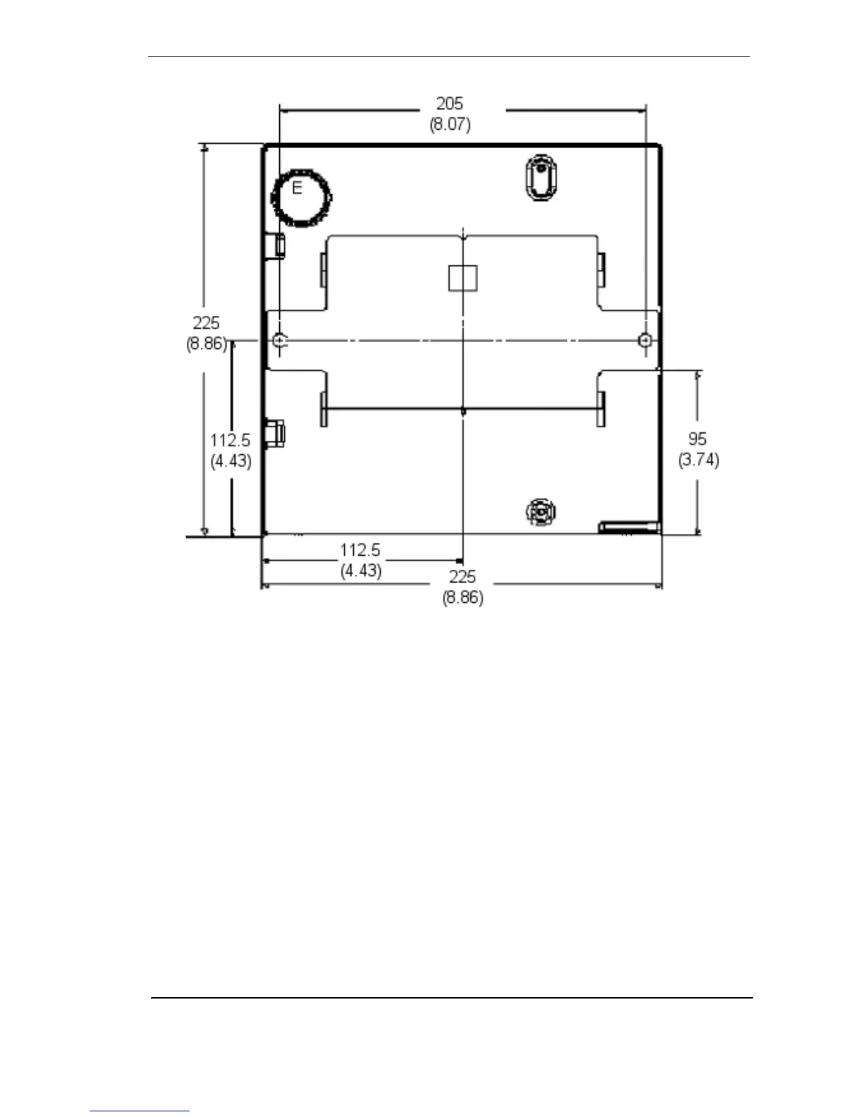
VESDA LaserCOMPACT - LaserCOMPACT Detector Dimensions (Rear View)

VESDA LaserCOMPACT
42 pages
Print Icon
To Next Page IconTo Next Page
To Next Page IconTo Next Page
To Previous Page IconTo Previous Page
To Previous Page IconTo Previous Page
Loading...
VESDA
®
LaserCOMPACT Product Guide
13
Figure 9 - LaserCOMPACT detector dimensions - rear view
E = Cable Entry Port on rear of enclosure

Other manuals for VESDA LaserCOMPACT

Related product manuals