EasyManua.ls Logo

Vishay VT400 - Digital Input;Output Troubleshooting; 9.4 Checking Digital Input and Outputs

Vishay VT400
82 pages
Print Icon
To Next Page IconTo Next Page
To Next Page IconTo Next Page
To Previous Page IconTo Previous Page
To Previous Page IconTo Previous Page
Loading...
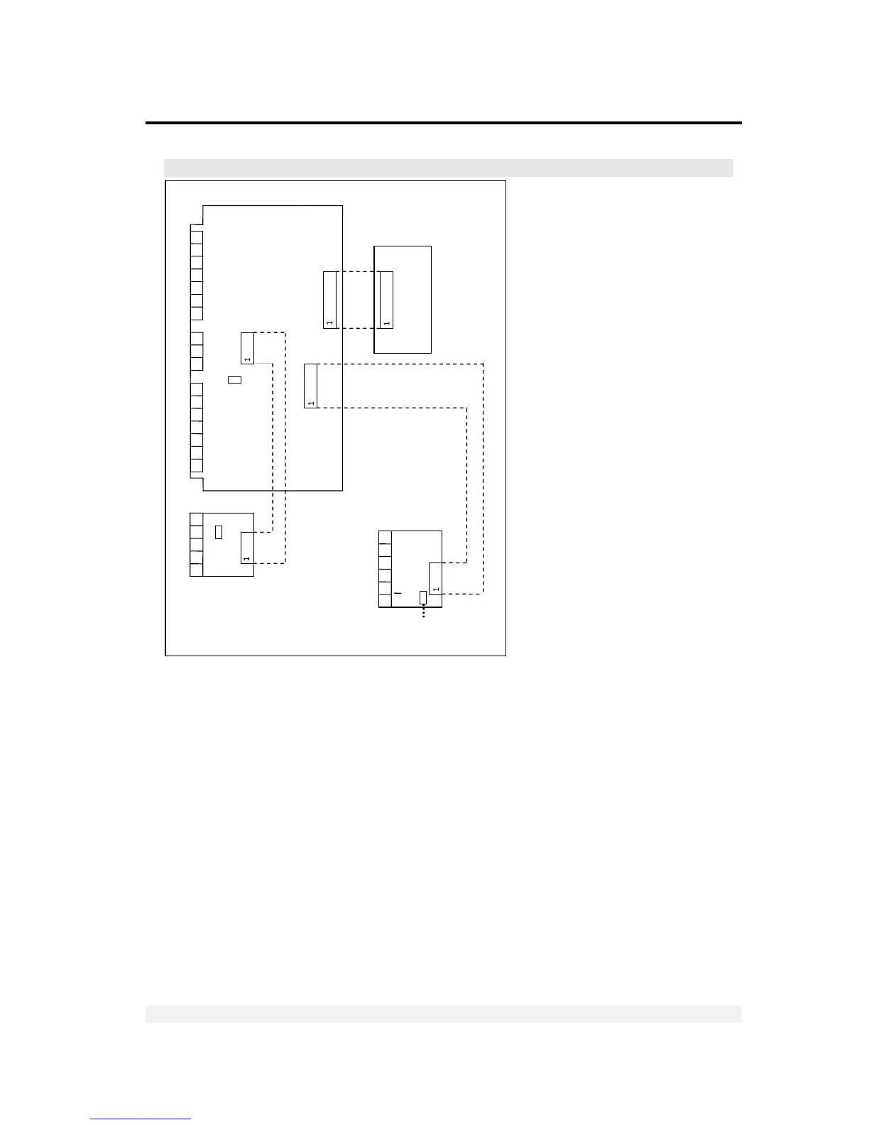
Appendix A: Technical Drawings
VT400 Technical Manual, Rev. A5 65 Doc # UM-VT400-EN
iii. Terminal Connections (Wall-Mount Model)
+
POWER
¯
JP1
Cal.
Lock
+
INPUT
¯
OUT1
OUT2
COM
TX
RX
SGND
SHIELD
+ SIG
– SIG
+ EX
+ SEN
- SEN
- EX
PCB 801
PCB 715
PCB
761
PCB
439
A
B
A
B
SGND
JP1
TER. SEL.
IOUT+
VOUT+
VOUT- or
IOUT-
+
POWER IN
(24 VDC)
SHLD
Select Current or
Voltage Output
NOTE: PCBs are drawn as
viewed in the housing.
7 6 5
4
3
2
1
3
2
1
7 6 5
4
3
2
1
5
4
3
2
1
6
5
4
3
2
1

Table of Contents

Related product manuals