EasyManua.ls Logo

VOLTWERK VS 3 - Πινακίδα Τύπου

Default Icon
Print Icon
To Next Page IconTo Next Page
To Next Page IconTo Next Page
To Previous Page IconTo Previous Page
To Previous Page IconTo Previous Page
Loading...
Voltwerk VS 3, 4, 5 Εγχειρίδιο χειρισμού 17
3 Τεχνική περιγραφή
ΕΛΛΗΝΙΚΑ
DO_BA_2008_121LB_3GRE_AVo 22.2.10
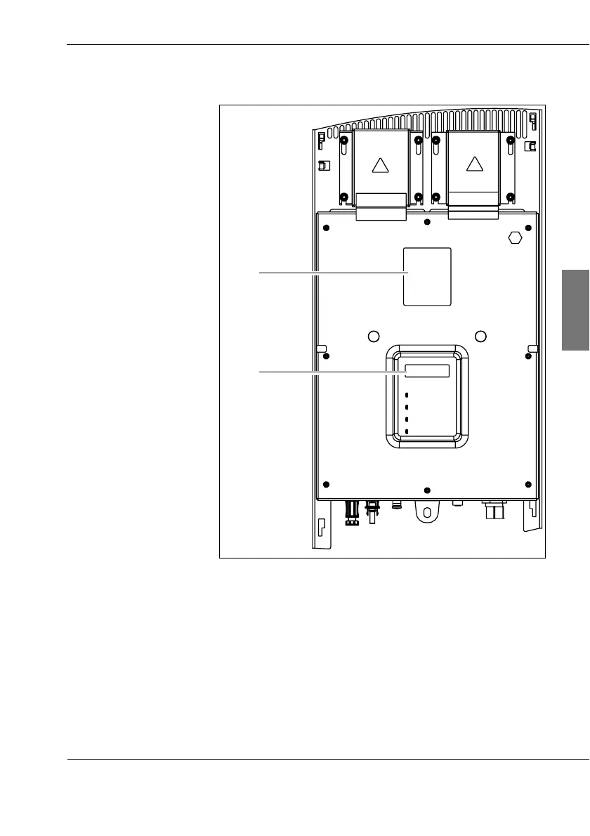
3.6 Πινακίδα Τύπου
3.2: Μετατροπέας στοιχειοσειρών χωρίς κέλυφος
συσκευής
(1) Πινακίδα Τύπου
(2) Οθνη
(1)
(2)

Table of Contents