EasyManua.ls Logo

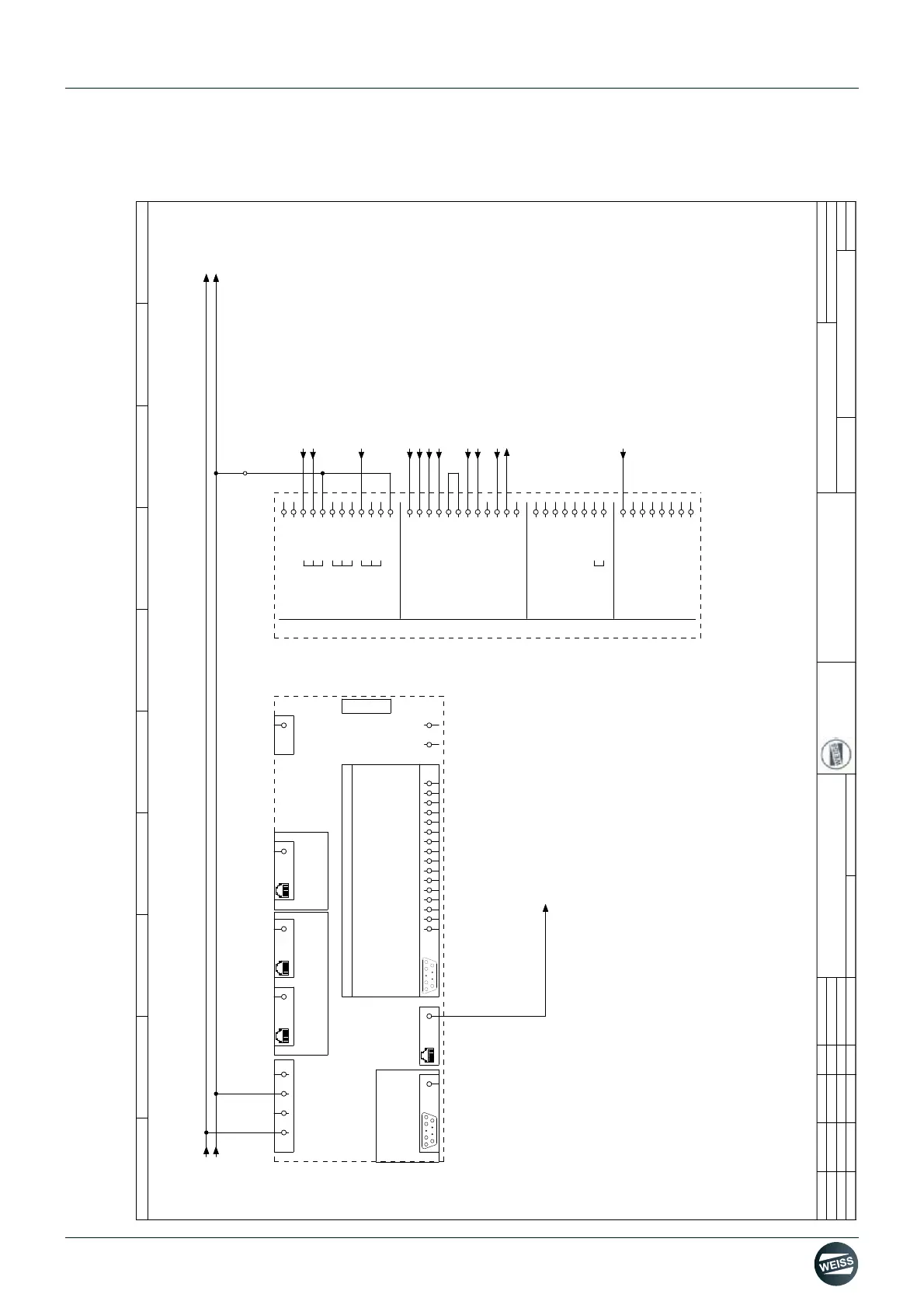
WEISS EF2 Series - 5 SIL3 D410-2 Interface I;O Connection Example

WEISS EF2 Series
172 pages
Print Icon
To Next Page IconTo Next Page
To Next Page IconTo Next Page
To Previous Page IconTo Previous Page
To Previous Page IconTo Previous Page
Loading...
Manual R06-2016 155 / 172
ROTARY INDEXING TABLE CONTROLLER
EF2...B
APPENDIX | 13.1 EF2...B; 0.37 kW Controller connection examples
13.1.5 SIL3 D410-2 Interface I/O connection example
Page
Page
examples indexer control
Ed.
01
Original
---
---
djahn +
Date
Date
Replaced by
EF2_1ph_0,37kW
Sil3
wiring example SIL3 D410-2 Interface I/O
0,37kW
1
Modification
0 76
Appr
Replacement of
8 93
14
03
4
13.06.2016
WEISS GmbH
02
2
=
Name
5
Siemensstraße 17
D-74722 Buchen
Tel. +49 (0)6281-5208-0
SIEMENS
18
BA
18 18 18
1
x
HTL/TTL/SSI-ENCODER
x
1
X23
1
+TEMP
2
SSI_CLK
3
SSI_XCLK
4
P-ENCODER 5V/24V
5
P-ENCODER 5V/24V
6
P-SENSE
7
M-ENCODER (M)
8
-TEMP (M)
9
M-SENSE (M)
10
RP
11
RN
12
BN
13
BP
14
AN_SSI_XDAT
15
AP_SSI_DAT
SH
SHIELD
X100 .
DRIVE-CLIQ
X124 +
+24V
+
+24V
M
M
M
M
.
PROFINET
X150 P1
ADDRESS
.
PROFINET
X150 P2 .
ETHERNET PN/IE
X127 P1
ADDRESS
XPM-IF .
POWER MODULE IF
.
PROFIBUS DP/ MPI
X21
ADDRESS
X23 SH
SHIELD
X109
.
CF-CARD
PE
PE
-KF1
/02.5
SIMOTION
D410-2 DP/PN
6AU1410-2AD00-0AA0
SIEMENS
E0.1
X120
DI 17+
4
E0.0
X120
DI 16
3
X120
-TEMP
2
X120
+TEMP
1
E0.5
X120
DI 19-
8
E0.4
X120
DI 19+
7
E0.3
X120
DI 18
6
E0.2
X120
DI 17-
5
X120
M1
12
E1.0
X120
DI 21-
11
E0.7
X120
DI 21+
10
E0.6
X120
DI 20
9
E1.4
X121
DI 3
4
E1.3
X121
DI 2
3
E1.2
X121
DI 1
2
E1.1
X121
DI 0
1
X121
DI/DO 9
8
X121
DI/DO 8
7
X121
M
6
X121
M2
5
X121
M
12
X121
DI/DO 11
11
X121
DI/DO 10
10
X121
M
9
X130
M
4
X130
M2
3
E1.6
X130
DI 22-
2
E1.5
X130
DI 22+
1
A0.1
X130
DO 16-
8
A0.0
X130
DO 16+
7
X130
24 V1
6
X130
M1
5
X131
DI/DO 14
4
X131
M
3
X131
DI/DO 13
2
X131
DI/DO 12
1
PEW2
X131
AI 0-
8
PEW0
X131
AI 0+
7
X131
M
6
X131
DI/DO 15
5
-KF1
/02.0
D410-2 DP/PN
SIMOTION
RACK-ID:
POSITION:
field bus interface service interface (front)
thermo-click motor DI 0
/01.8
limit switch DI 8
/01.8
controller run DO11
/
+24VDC
/01.8
GND
/01.8
thermo-click braking resisitor DI20
/01.8
+24VDC
/ 03.1
GND
/ 03.1
DRIVE_CLIQ
/ 04.0
STO_DI16
/03.3
STO_DI17
/03.3
quick-stop DI 9
/03.3
monitoring motor contactor DI 3
/03.3
limit switch CW_DI1
/
limit switch CCW_DI2
/
Default_IP_DI10
/
monitoring brake relay_DI12
/01.8

Table of Contents

Related product manuals