EasyManua.ls Logo

Westerbeke BCGB - Wiring Diagram

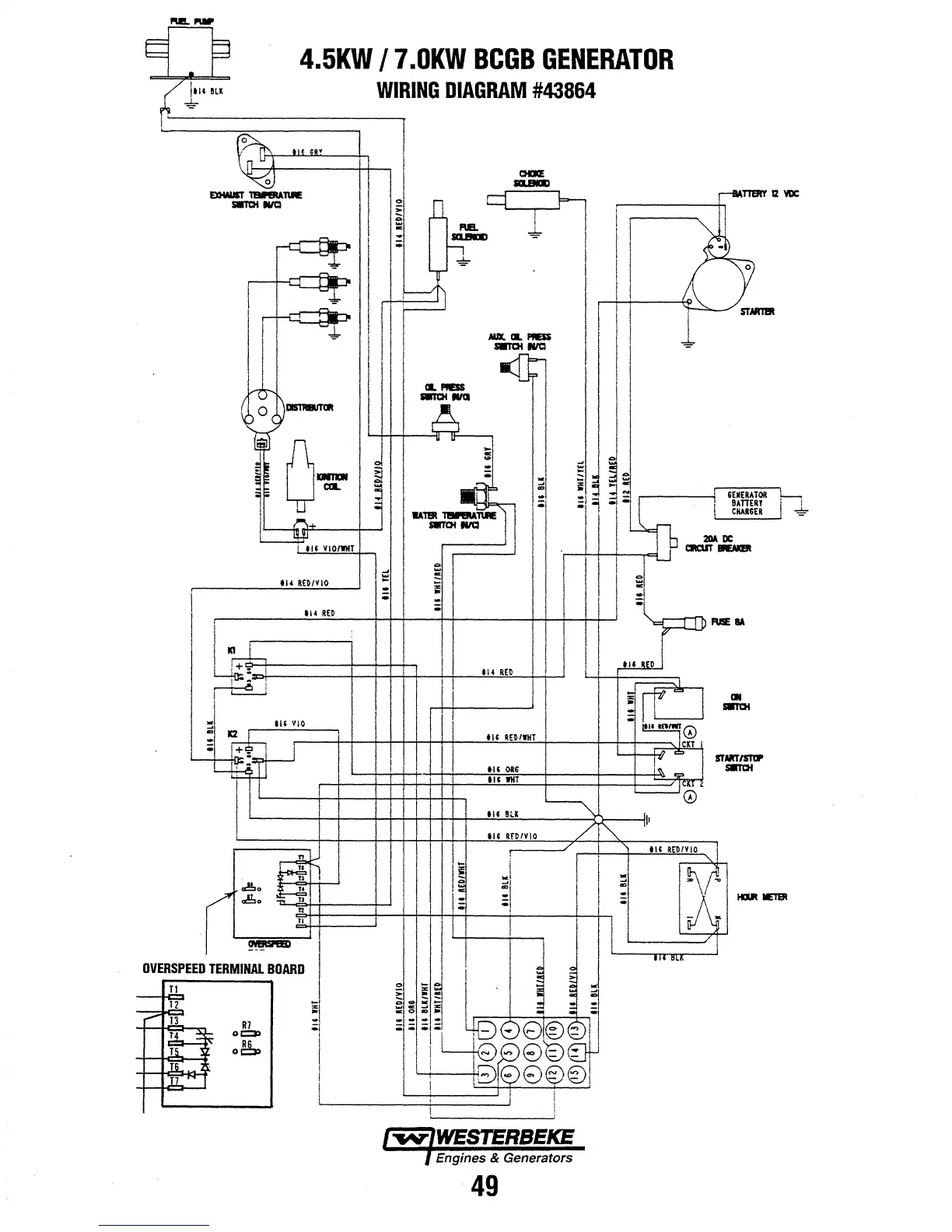
Westerbeke BCGB
86 pages
Print Icon
To Next Page IconTo Next Page
To Next Page IconTo Next Page
To Previous Page IconTo Previous Page
To Previous Page IconTo Previous Page
Loading...
4.SKW
/7
.OKW
BeGB
GENERATOR
WIRING
DIAGRAM
#43864
OIICE
IIlLSaI
rMTTBn'
IZ
VDC
I
-~
~~
$Cl!II:lII
=
I
~
,~
I
~L
MIX.
CL
PIIESS
I
1
sma!
Il1O
,
~
CL
PIIESS
RItCH
II1II
.
~I!F--+----'
Till
VIO/lIMT
114
RED/VIO
114
RED
114
RED
IIC
REHIHT
lIS
ORG
liS
,"T
I
I"
=
i
~
o;?
IIC
BLI
IIC
RFOIVIO
I
j
I
~I
I
Engines & Generators
49

Related product manuals