EasyManua.ls Logo

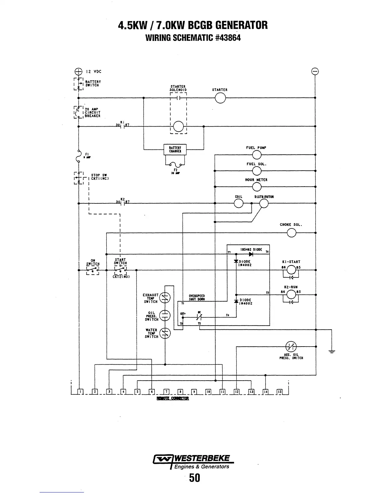
Westerbeke BCGB - Wiring Schematic

Westerbeke BCGB
86 pages
Print Icon
To Next Page IconTo Next Page
To Next Page IconTo Next Page
To Previous Page IconTo Previous Page
To Previous Page IconTo Previous Page
Loading...
4.SKW
/7
.OKW
BeGB
GENERATOR
WIRING
SCHEMATIC
#43864
j
12
VOC
r
l
II
8A
HERY
SWITCH
L..
I
STARTER
SOLENOID
r--,
STARTER
.-------------------~------~~~------~
rt
l
20
AMP
I(
ICIRCUIT
L..
I
BREAKER
FI
...
STOP
SW
r I
CHltNC)
L..
I I
I
I
I
Ki
KZ
F2
l,
..
.--+
______
~~
~L-------------------------+_--~
L..
_____
,
I
"
ON
STUT
:!~C~
FUEL
PUMP
FUEL SOL.
HOUR
METER
115402
DIODE
TI
CHOKE
SOL.
KI-START
1
~~~
L_~~~~~L~_-c~~~--------------+---------~--+--+--------~~~~
CKTZtNO)
EXHAUST
TEMP
SWITCH
OIL
PitESS.
SWITCH
WATER
TEMP
SWITCH
TI
OVEUPEED
saUl
DOn
,
__
..1:2L
J!L
_
[il..
.
.Ii~
!MtI
C!IIEIlII
Engines & Generators
50
DIODE
IN400Z
AUX.
Oil
PlESS.
SWITCH
I
.rAJ

Related product manuals