EasyManua.ls Logo

YASKAWA CIMR-JC4A0002BAA - Page 194

YASKAWA CIMR-JC4A0002BAA
265 pages
To Next Page IconTo Next Page
To Next Page IconTo Next Page
To Previous Page IconTo Previous Page
To Previous Page IconTo Previous Page
Loading...
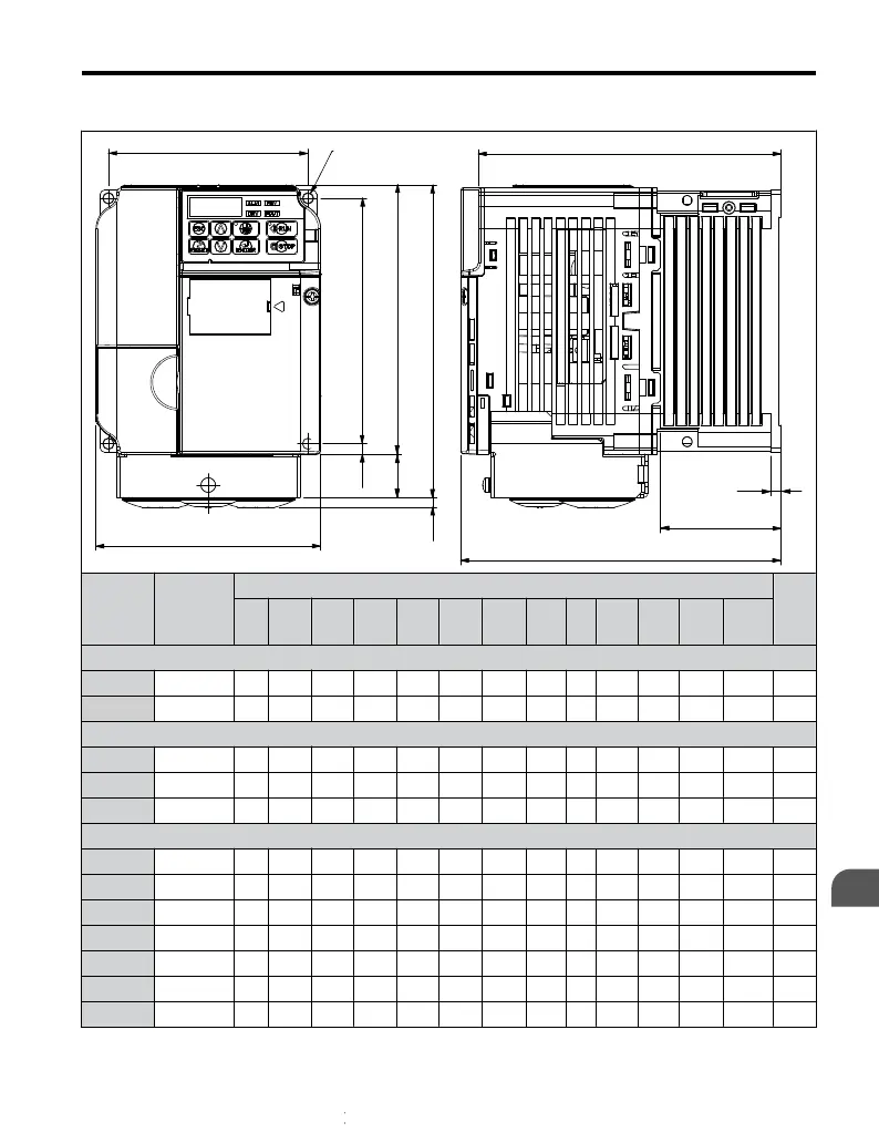
Table 7.4 IP20/Open-Chassis Design Fitted with the NEMA Type 1 Kit
4-M4
W1
W
H5
H2
H4
H
H3
H1
D1
D2
D
t1
Drive
Model
CIMR-Jo
NEMA
Type 1 Kit
Model
EZZ
Dimensions (in)
Wt.
(lb)
W H D W1 H1 H2 H3 H4 H5 H6 D1 D2 t1
Single-Phase 200 V Class
BA0006B 020564C 4.3 5.9 5.4 3.8 5.0 0.18 0.2 0.8 0.2 0.06 2.3 5.1 0.2 4.2
BA0010B 020564D 4.3 5.9 6.1 3.8 5.0 0.18 0.2 0.8 0.2 0.06 2.3 5.7 0.2 4.4
Three-Phase 200 V Class
2A0010B 020564G 4.3 5.9 5.1 3.8 5.0 0.18 0.2 0.8 0.2 0.06 2.3 4.7 0.2 4.2
2A0012B 020564C 4.3 5.9 5.4 3.8 5.0 0.18 0.2 0.8 0.2 0.06 2.3 5.1 0.2 4.2
2A0020B 020564H 4.3 5.9 5.6 5.0 5.0 0.18 0.2 0.8 0.2 0.2 2.6 5.3 0.2 5.7
Three-Phase 400 V Class
4A0001B 020564G 4.3 5.9 3.2 3.8 5.0 0.18 0.2 0.8 0.2 0.06 0.4 2.9 0.2 2.6
4A0002B 020564G 4.3 5.9 3.9 3.8 5.0 0.18 0.2 0.8 0.2 0.06 1.1 3.6 0.2 3.1
4A0004B 020564C 4.3 5.9 5.4 3.8 5.0 0.18 0.2 0.8 0.2 0.06 2.3 5.1 0.2 4.2
4A0005B 020564J 4.3 5.9 6.1 3.8 5.0 0.18 0.2 0.8 0.2 0.06 2.3 5.7 0.2 4.2
4A0007B 020564J 4.3 5.9 6.1 3.8 5.0 0.18 0.2 0.8 0.2 0.06 2.3 5.7 0.2 4.2
4A0009B 020564J 4.3 5.9 6.1 3.8 5.0 0.18 0.2 0.8 0.2 0.06 2.3 5.7 0.2 4.2
4A0011B 020564H 4.3 5.9 5.6 5.0 5.0 0.18 0.2 0.8 0.2 0.2 2.6 5.3 0.2 5.7
7.4 Installing Peripheral Devices
YASKAWA ELECTRIC TOEP C710606 26B YASKAWA AC Drive – J1000 Quick Start Guide
193
7
Peripheral Devices &
Options
http://nicontrols.com

Table of Contents

Related product manuals