EasyManua.ls Logo

YOKOGAWA CW240 - Page 71

YOKOGAWA CW240
388 pages
Print Icon
To Next Page IconTo Next Page
To Next Page IconTo Next Page
To Previous Page IconTo Previous Page
To Previous Page IconTo Previous Page
Loading...
4-15
IM CW240E
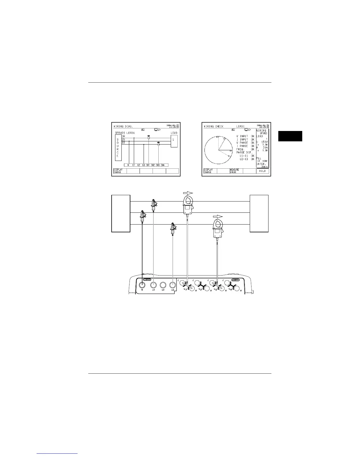
Wiring
4
4.5 Carrying out Wiring
4.5.8 Single-phase Three-wire Two-current / Single Load
(3P3W2I)
<Two-power-meter method>
WIRING DIAGRAM Screen WIRING CHECK Screen
Actual Wiring
2S
1R
3T
2S
1R
3T
Power
supply
Load
Black
Red
Blue
SEE ALSO
For more information on wiring checks, see Section 4.7, Checking Wiring.

Table of Contents

Related product manuals