EasyManua.ls Logo

YOKOGAWA CW240 - Page 72

YOKOGAWA CW240
388 pages
Print Icon
To Next Page IconTo Next Page
To Next Page IconTo Next Page
To Previous Page IconTo Previous Page
To Previous Page IconTo Previous Page
Loading...
4-16
IM CW240E
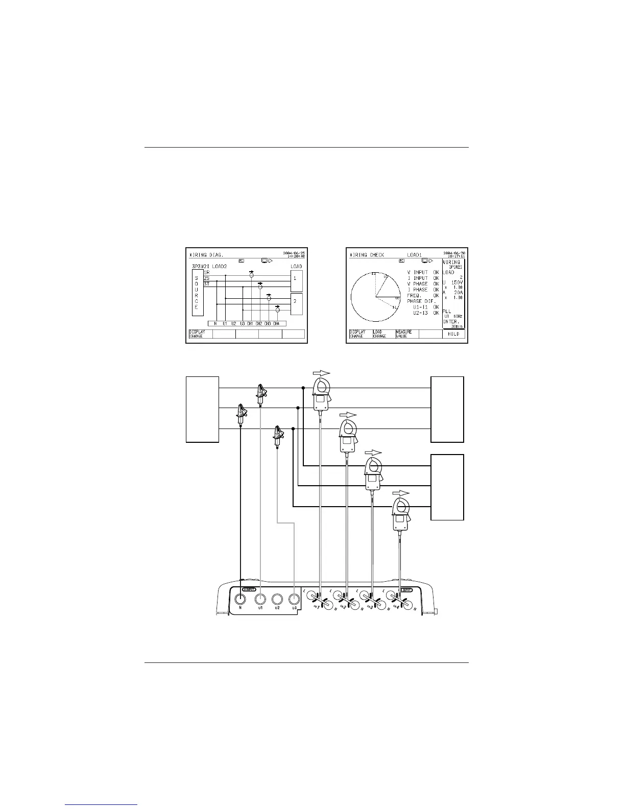
4.5.9 Single-phase Three-wire Two-current / Two Loads
(3P3W2I)
<Two-power-meter method>
The CW240 can simultaneously measure multiple loads of the same power
supply (voltage shared).
WIRING DIAGRAM Screen WIRING CHECK Screen
Actual Wiring
2S
1R
3T
2S
1R
3T
2S
1R
3T
Load
1
Power
supply
Load
2
Black
Red
Blue
SEE ALSO
For more information on wiring checks, see Section 4.7, Checking Wiring.
4.5 Carrying out Wiring

Table of Contents

Related product manuals