EasyManua.ls Logo

YOKOGAWA ZR402G - Page 32

YOKOGAWA ZR402G
169 pages
To Next Page IconTo Next Page
To Next Page IconTo Next Page
To Previous Page IconTo Previous Page
To Previous Page IconTo Previous Page
Loading...
<2.Specications>
2-13
IM 11M12A01-04E 11th Edition : Jul. 19, 2017-00
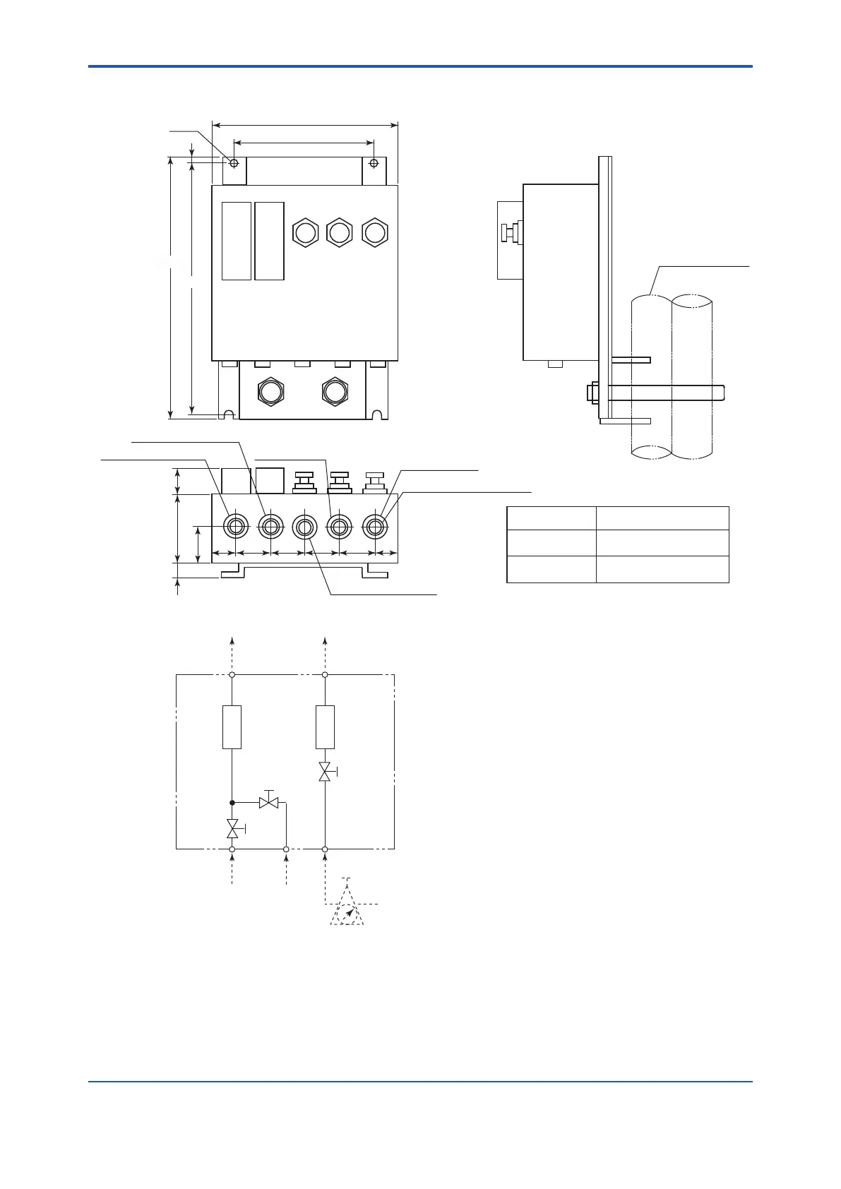
l External Dimensions
CHECK
OUT
REF
OUT
REFERENCE
SPAN
ZERO
REFERENCE CHECK
AIR
IN
ZERO
IN
SPAN
IN
CHECK
OUT
PIPNG INSIDE THE FLOW SETTING UNIT
Unit : mm (inch)
Weight : Approx. 2.3 kg
Flowmeter Flowmeter
ZERO
GAS IN
AIR IN
Instrument air
Approx. 1.5 l/min.
Air Set
REF
OUT
SPAN
GAS IN
20
2035
35
35
35
35
70
32
7
222.8
235.8
140
180
7
Reference gas outlet
Calibration gas outlet
ø6 Hole
Span gas inlet
Zero gas inlet
2B mounting pipe
Instrument air inlet
F2.6E.ai
Air pressure ;
without check valve ; sample gas pressure + approx.50 kPaG
with check valve ; sample gas pressure + approx.150 kPaG
Piping connection port A
ZA8F-J*C
ZA8F-A*C
5 - Rc1/4
5 - 1/4NPT
Model
Piping connection port A

Table of Contents

Related product manuals