EasyManua.ls Logo

Acteon X-MIND unity - Page 69

Acteon X-MIND unity
80 pages
Print Icon
To Next Page IconTo Next Page
To Next Page IconTo Next Page
To Previous Page IconTo Previous Page
To Previous Page IconTo Previous Page
Loading...
Page 69 of 79
ENGLISH
Operator’s manual • X-Mind unity • VH • (15) • 09/2017 • NUN0EN010H
E1 - LONG CONE
40cm (16”) bracket 140cm (55”)
80cm (31”) bracket 180cm (71”)
110cm (43”) bracket 210cm (83”)
E2 - SHORT CONE
40cm (16”) bracket 150cm (59”)
80cm (31”) bracket 190cm (75”)
110cm (43”) bracket 220cm (87”)
E3 - FULL SIZE
40cm (16”) bracket 188cm (74”)
80cm (31”) bracket 228cm (90”)
110cm (43”) bracket 258cm (102”)
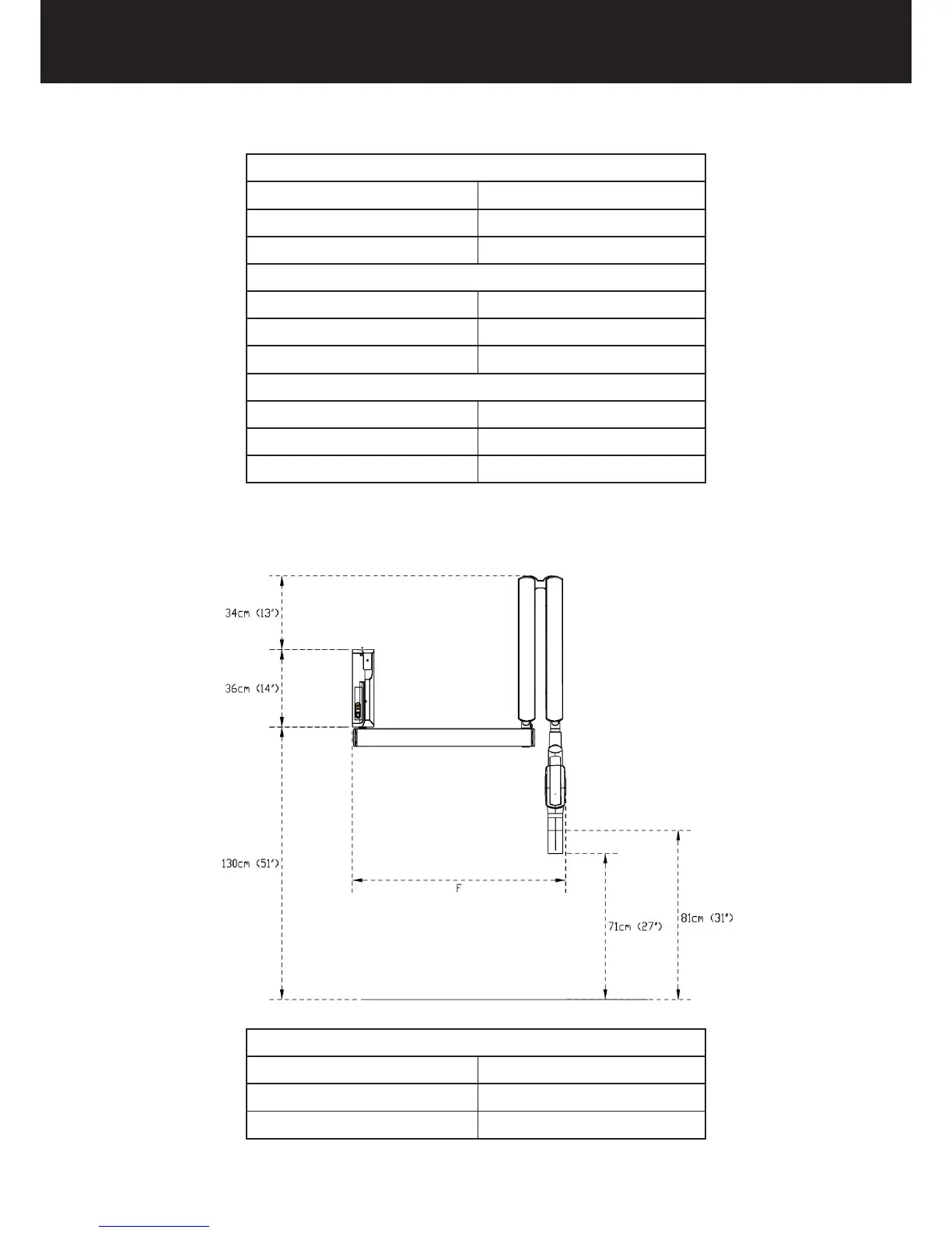
SIDE VIEW (CLOSED) - BOTTOM MOUNT
F
40cm (16”) bracket 60cm (24”)
80cm (31”) bracket 100cm (39”)
110cm (43”) bracket 130 (51”)

Table of Contents

Other manuals for Acteon X-MIND unity

Related product manuals