EasyManua.ls Logo

Arjo Tornado - Cooling Methods and Inspection Holes

Arjo Tornado
36 pages
Print Icon
To Next Page IconTo Next Page
To Next Page IconTo Next Page
To Previous Page IconTo Previous Page
To Previous Page IconTo Previous Page
Loading...
13
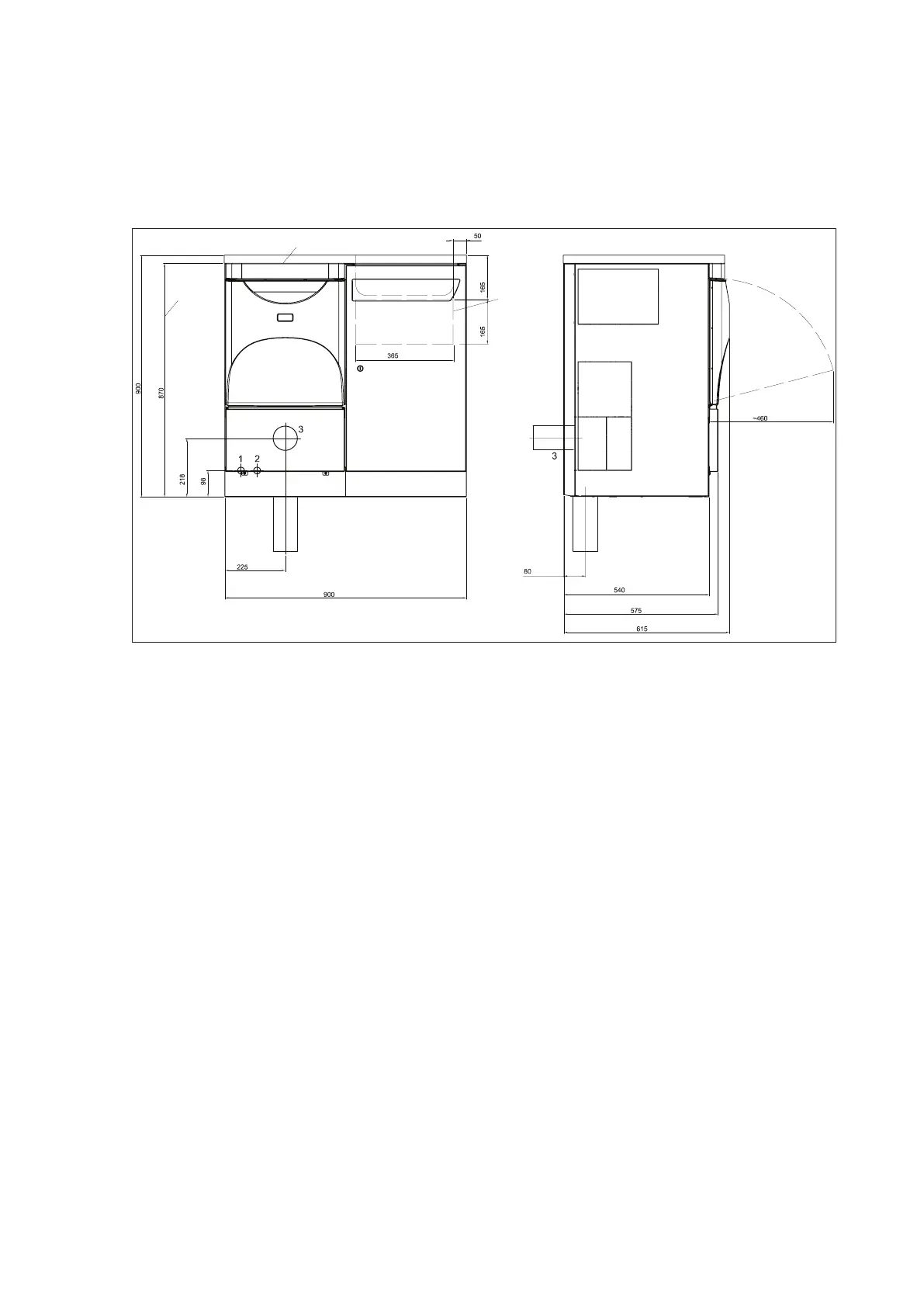
2.3.3 Under-bench model
Scale drawings apply to the FD1805 model.
4
5
6
7
4
003025
Figure 4. Scale drawing
1. Hot Water
2. Cold Water
5. Protection sheet*
(option)
3. Waste connection, P,
wall
6. Without worktop
7. Connections to
optional worktop**
4. Waste connection, S,
oor
* Protection sheet must be used if the machine is installed under
a bench or similar.
** Area for water and waste connections for optional worktop with
sink.

Other manuals for Arjo Tornado

Related product manuals