EasyManua.ls Logo

Bailey NICS01 - NICS01 Cable Connection to NIDS01 Termination Module; NICS01 Cable Connections to Multiple Stations and Serial Links

Bailey NICS01
44 pages
Print Icon
To Next Page IconTo Next Page
To Next Page IconTo Next Page
To Previous Page IconTo Previous Page
To Previous Page IconTo Previous Page
Loading...
INSTALLATION
SETUP/PHYSICAL INSTALLATION
2 - 4 I-E96-409A
®
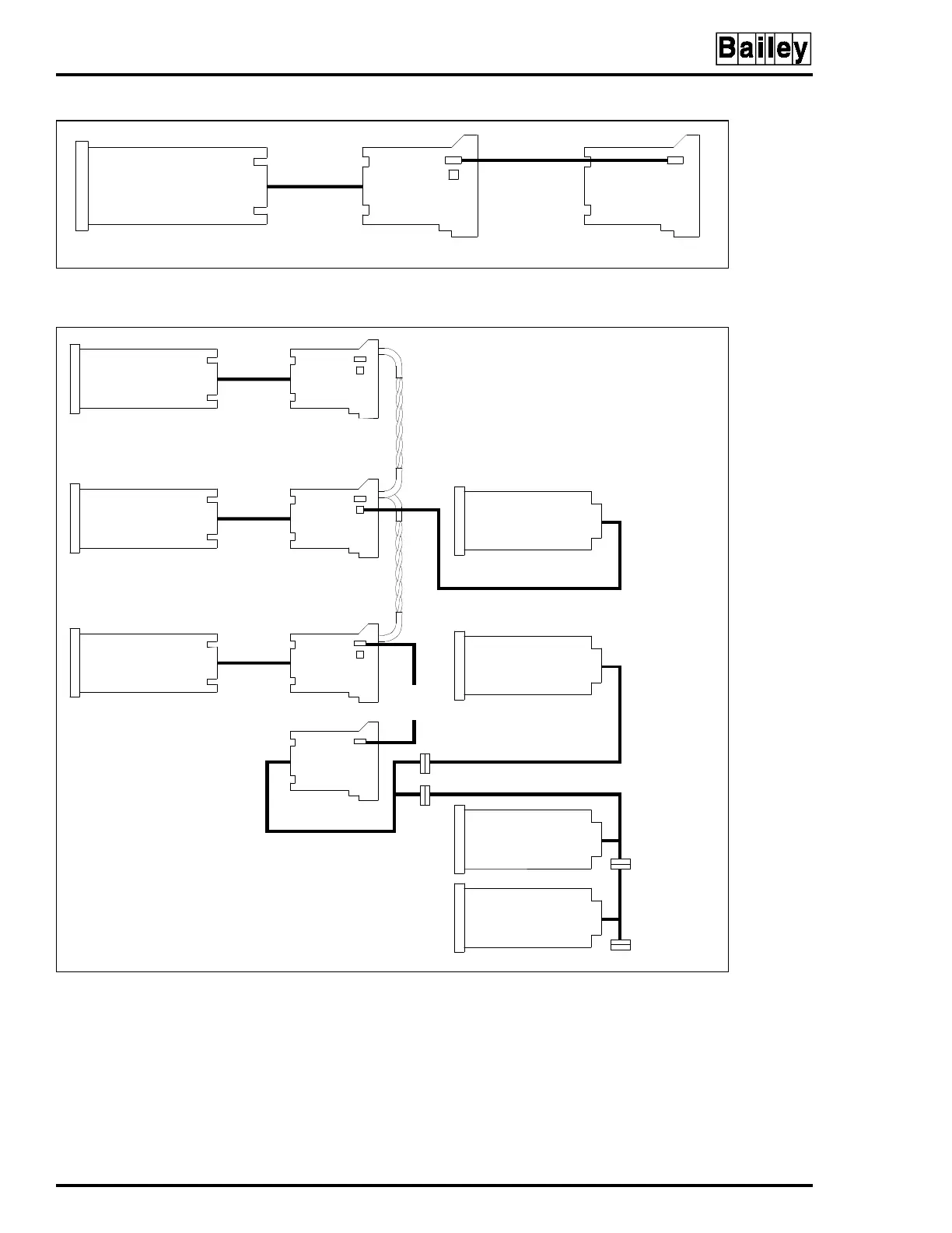
Figure 2-3. NICS01 Cable Connection to NIDS01 Termination Module
Figure 2-4. NICS01 Cable Connections to Multiple Stations and Serial Links
IMCOM03/04
IMCIS02
IMQRC01
IMQRS02
T00499A
P3 P1 P1
J1
J1
J2
NKTM01
NKTU02/12
RIBBON CABLE
6634408_2
NICS01 NIDS01
IMMFC03/04/05
IMMFP01/02/03
IMCOM03/04
IMCIS02
IMQRC01
IMQRS02
IMCOM03/04
IMCIS02
IMQRC01
IMQRS02
NIMF01
NIMP01/02
NICS01
NICS01
NIDS01
SERIAL LINK WIRE
SERIAL LINK WIRE
NKTM01
NKTU02/12
NKTM01
NKTU02/12
NKTM01
NKTU02/12
NKTD01/11
NKDS02/12
NKDS01/11
(ANALOG OUTPUT
BYPASS CAPABILITY)
NKTD02/12
(NO ANALOG OUTPUT
BYPASS CAPABILITY)
(ANALOG OUTPUT
BYPASS CAPABILITY)
NKDS03/13
(NO ANALOG
OUTPUT
BYPASS
CAPABILITY)
NDIS01
NDCS03
IISAC01
NDIS01
NDCS03
IISAC01
NDIS01
NDCS03
IISAC01
P1
P1
P1
P1
T00500A
NDIS01
NDCS03
IISAC01
P3
P3
P3
P1
P1
P1
P1
J1
J1
J1
J1
J2
J2
J2
RIBBON
CABLE
6634408_2

Table of Contents

Related product manuals