EasyManua.ls Logo

Bosch 5312 - Page 105

Bosch 5312
112 pages
Print Icon
To Next Page IconTo Next Page
To Next Page IconTo Next Page
To Previous Page IconTo Previous Page
To Previous Page IconTo Previous Page
Loading...
Figure3
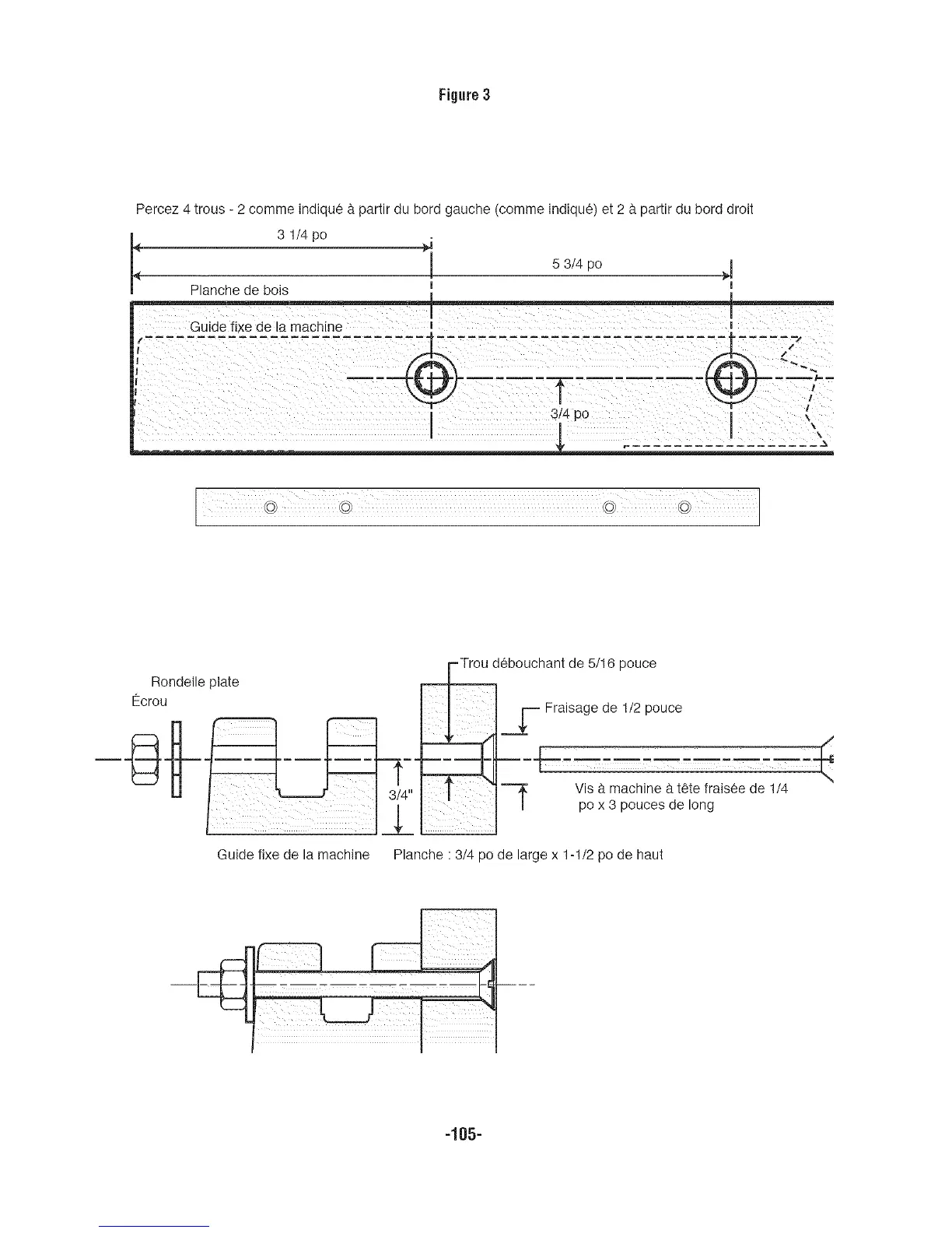
Percez 4 trous - 2 comme indiqu¢ a partir du bord gauche (comme indiqu6) et 2 a. partir du bord droit
5 3/4 po
I
Guide fixe de la machine i i
Rondelle plate
Ecrou
Guide fixe de la machine
debouchant de 5/16 pouce
j Fraisage de 1/2 pouce
Vis _tmachine a.tCte fraisee de 1/4
pox 3 pouces de long
Planche 3/4 po de large x 1-1/2 po de haut
-105-

Table of Contents

Other manuals for Bosch 5312

Related product manuals