EasyManua.ls Logo

Cisco UCS C240 M5 - Location of Internal Micro SD Card Socket; Replacing a USB Drive; Replacing an Internal USB Drive

Cisco UCS C240 M5
168 pages
Print Icon
To Next Page IconTo Next Page
To Next Page IconTo Next Page
To Previous Page IconTo Previous Page
To Previous Page IconTo Previous Page
Loading...
d) Replace the server in the rack, replace cables, and then fully power on the server by pressing the Power button.
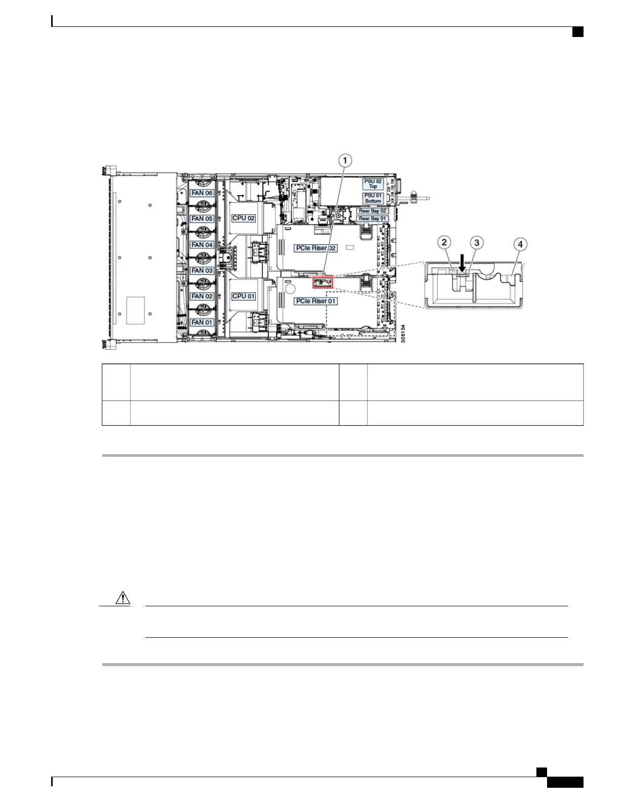
Figure 35: Location of Internal Micro SD Card Socket
Plastic retainer (push aside to access socket)3Location of Micro SD card socket on the top of
PCIe riser 1
1
Micro SD activity LED4Micro SD card socket under plastic retainer2
Replacing an Internal USB Drive
This section includes procedures for installing a USB drive and for enabling or disabling the internal USB
port.
Replacing a USB Drive
We do not recommend that you hot-swap the internal USB drive while the server is powered on because
of the potential for data loss.
Caution
Step 1
Remove an existing internal USB drive:
a) Shut down and remove power from the server as described in Shutting Down and Removing Power From the Server,
on page 39.
Cisco UCS C240 M5 Server Installation and Service Guide
85
Maintaining the Server
Replacing an Internal USB Drive

Table of Contents

Related product manuals