EasyManua.ls Logo

COBHAM AVIATOR 700S - SDU-5045 Compact Satellite Data Unit

COBHAM AVIATOR 700S
128 pages
Print Icon
To Next Page IconTo Next Page
To Next Page IconTo Next Page
To Previous Page IconTo Previous Page
To Previous Page IconTo Previous Page
Loading...
SDU-5045 Compact Satellite Data Unit
3-2 Chapter 3: Equipment drawings 98-158751-C
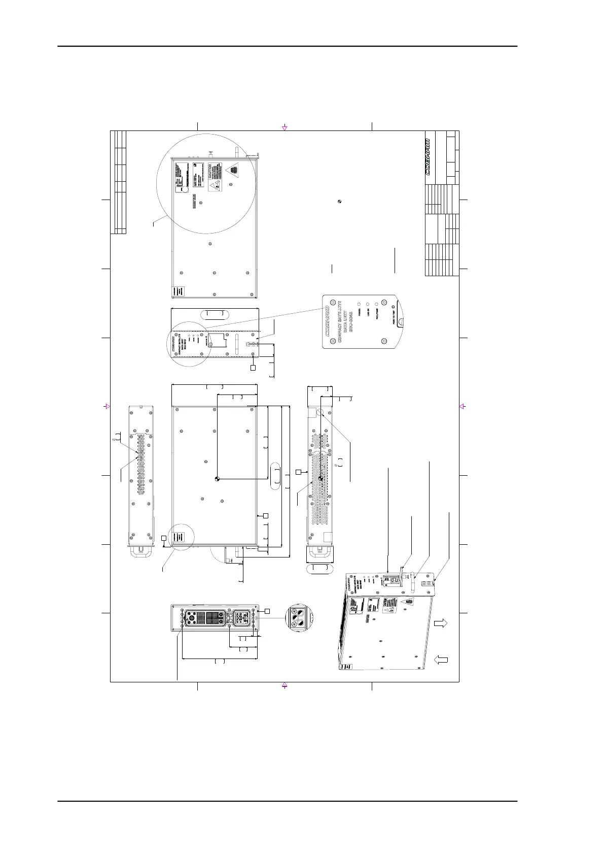
3.1 SDU-5045 Compact Satellite Data Unit
Figure 3-1: Outline Drawing: CSDU (1/2)
)XOOHUWRQ&$
&RPDQW,QGXVWULHV,QF
6+((7
:(,*+7
6&$/(

7(03/$7(5(9)
&$*(&2'(
5(9
7,7/(
':*12
'
6,=(
%
'
&
$
'
&
%
$
287/,1('5$:,1*6'8
&RPSDFW6DWHOOLWH'DWD8QLW

$$

/EV
2)
0$,17(1$1&(&211(&725
%$6(7(7+(51(7&211(&725
&211(&7,1*3$57
%$6(7(7+(51(7&211(&7255-0$/(
0,&5286%7<3(%&211(&725
&211(&7,1*3$57
0,&5286%7<3(%3/8*
0$,17(1$1&(
&211(&725&29(5
)5217+22.1$6&7
%/2:
7+528*+
'5$:
7+528*+
$,5)/2:',5(&7,21
$5,1&38//+$1'/(201,3/(663$5712$






PD[
PD[






%
6HH6KHHW
5($5
723
%27720
)5217
)
%






$5,1&&211(&725
121(19,5210(17$/
$03+(12/3$5712
$-&)
&$9,7<$:$
&$9,7<%4
&$9,7<&)&
&211(&7,1*3$57
121(19,5210(17$/
$03+(12/3$5712
$'&)
&$9,7<$:$
&$9,7<%4
&$9,7<&)&
5($59,(:
%


:
:
127(
)52179,(:
(


127(
%277209,(:
:





&21'8&7,9()$&(
)25($57+%21',1*7(67


127(
7239,(:
(
$
6HH6KHHW
6((127(
,1'(;&2'(
127(6
81,70$66.*/%*8$5$17(('0$;0$66.*/%

,1',&$7(6$3352;,0$7(&(17(52)*5$9,7<&2*

'$5.3257,21,1',&$7(662/,'3$572)32/$5,6,1*.(<:$<6,1'(;&2'(

'2127%/2&.&22/,1*$,5+2/(6

$,5)/2:5$7(,1%/2:7+528*+&22/,1*02'(.*+5#&&8%,&)((73(50,187(
$,5)/2:5$7(,1'5$:7+528*+&22/,1*02'(.*+5#&
35(6685('5233$#&8%,&)((73(50,187(&2):$7(5

35(6685('523,6002):$7(5#7+(67$1'$5'$,5)/2:5$7(
$//(;7(51$/',0(16,216&21)25072$5,1&63(&,),&$7,216)25/58&$6(6,=(

,167$//$7,21&/($5$1&($63(5$5,1&

120,1$/32:(5,1387:$#9$&32:(5)$&7250$;,08032:(5',66,3$7,21

:
12,17(51$/)$1

12),/75$7,212)$,55(48,5('

(19,5210(17$/&+$5$&7(5,67,&62)7+(&6'8$5(6800$5,=(',17+(476475'2&80(176


6'8,6&86720(57<3(180%(5$1'6'8,60$18)$&785(57<3(180%(5

$//',0(16,216127%$//221('$5(5()(5(1&(21/<

0$7(5,$/$1'),1,6+
0$7(5,$/

6,'(&29(56%$&.3/$1()5217&29(5$/80,1,80$//2<+$63(5(1(1$:
)5217)$&($/80,1,80$//2<7$63(5(1(1$:
),1,6+&+(0,&$/&219(56,21720,/'7/)7<3(,,&/$66

3$,1733*$(5263$&(&2$7,1*

35,0(5'(6235,0(&)&$(
723&2$7'(627+$1(&$+632/<85(7+$1(%/$&.0$77
)5217)$&(%/$&.$12',=('$/80,1,80

',0(16,216$5(0,//,0(7(56
',0(16,216,1%5$&.(76$5(,1&+(6
31

5(9,6,216
'(6&5,37,21
5(9
$33529('
'$7(
&+(&.('
'5$:1
'$7(
1$0(
'5$:1
7+(,1)250$7,21&217$,1(',17+,6'5$:,1*
,67+(3523(57<2)&2%+$0$1<5(352'8&7,21
,13$5725$6$:+2/(:,7+287:5,77(1
3(50,66,212)&2%+$0,6352+,%,7('
81/(6627+(5:,6(63(&,),('
',0(16,216$5(,1,1&+(6>00@
72/(5$1&(6
1(;7$66<
86('21
&+(&.('
(1*$335
'21276&$/('5$:,1*
0$7(5,$/
),1,6+
6((127(
6((127(
7<3('6,*1$785(6,1',&$7($33529$/
+$1':5,77(16,*1$785($33529$/2)
7+,6'2&80(17,621),/($7&20$17
,1'8675,(6,1&)8//(5721&$/,)251,$
7+(6(&2002',7,(67(&+12/2*<25
62)7:$5($5(&21752//(',1
$&&25'$1&(:,7+7+(81,7('67$7(6
(;3257$'0,1,675$7,215(*8/$7,216
:+(1(;3257(')5207+(81,7('67$7(6
',9(56,21&2175$5<7286/$:,6
352+,%,7('
$1*/(6
,1&+(6
PP
;;
;
;;;
;;
;;;;
;;;
$$
6'82XWOLQH'UDZLQJ

,'HPLUHO
,'HPLUHO

4$

$$
':*
'+ROORZD\$%RQG

Table of Contents