EasyManua.ls Logo

COBHAM AVIATOR 700S - SCM-5055 Configuration Module; SCM-5055 SDU Configuration Module

COBHAM AVIATOR 700S
128 pages
Print Icon
To Next Page IconTo Next Page
To Next Page IconTo Next Page
To Previous Page IconTo Previous Page
To Previous Page IconTo Previous Page
Loading...
SCM-5055 SDU Configuration Module
3-4 Chapter 3: Equipment drawings 98-158751-C
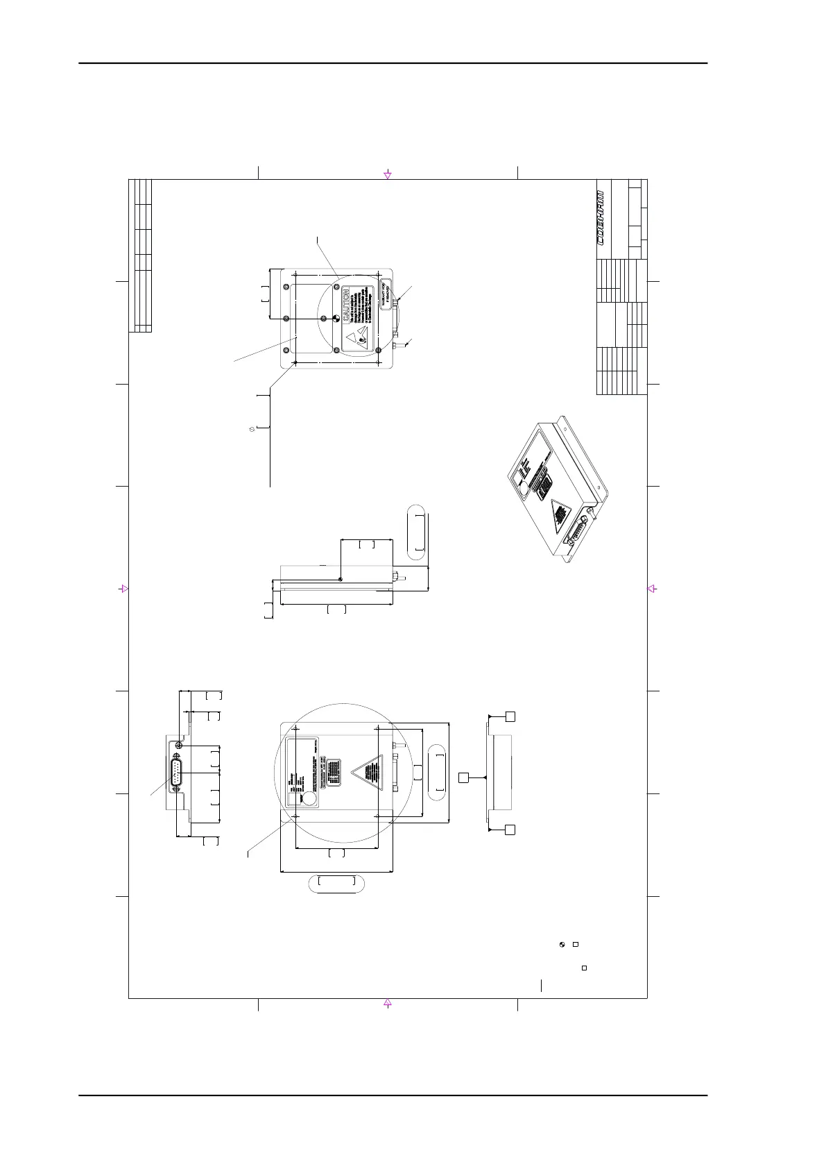
3.2 SCM-5055 SDU Configuration Module
Figure 3-3: Outline drawing SCM-5055 (1/2)
)XOOHUWRQ&$
&RPDQW,QGXVWULHV,QF
$
%

&
'

$
&
'
%
6,=(
'
':*12
7,7/(
5(9
&$*(&2'(
7(03/$7(5(9)

6&$/(
:(,*+7
6+((7
$$

287/,1('5$:,1*6&0
&RQILJXUDWLRQ0RGXOH6'8
2)
/EV









%
7239,(:
5($5










&211(&725-127(
)52179,(:
723
/()7
%27720
PD[
PD[






/()79,(:
127(6
5($59,(:
$
$
$
;),;,1*+2/(6








&
/$%(/5(&(6621/<
127(
127(
%277209,(:
127(6
*(1(5$/127(6$5()25,1)250$7,2121/<
0$66.*>/%@0$;

&(17(52)*5$9,7<

0$7(5,$/

%$6(3/$7($/80,1,80$//2<7$63(5(1(1$:
685)$&(6,1',&$7('$$5((/(&75,&$//<&21'8&7,9($1'$5(3529,'('$6*5281'%21',1*685)$&(6

0[7+5($'('($57+678'3529,'(6$1$/7(51$7,9(0($162)(48,30(17*5281',1*

),1,6+$685)$&(6&+(0,&$/&219(56,21720,/'7/)7<3(,,&/$66

723&$67,1*3$,17&$32/<85(7+$1(0$77723&2$7%/$&.0$7()6
&211(&725-326,7,21'68%0,1,$785(3/8*3,16:,7+81&)(0$/(6&5(:/2&.6(48,9$/(17

720,/'7/0$1'0
0$7,1*&211(&725326,7,21'68%0,1,$785(5(&(37$&/(62&.(760,/'7/025(48,9$/(17
0$;72548(1POELQ)2581&0$/(6&5(:/2&.6210$7,1*&211(&725-

32:(5,1387729'&9'&120,1$/6833/,('%<6'8

0$;,0806833/<&855(17P$
0$;,08032:(5',66,3$7,21:
6&0,63$66,9(/<&22/('$1'+$612,17(51$/&22/,1*)$1612)25&('$,5&22/,1*,65(48,5('

$//',0(16,216127%$//221('$5(5()(5(1&(21/<

(19,5210(17$/&+$5$&7(5,67,&62)7+(6&0$5(6800$5,=(',17+(476475'2&80(176

6&0,67+(&86720(57<3(180%(5$1'6&0,67+(0$18)$&785(57<3(180%(5

31
127(6127(6
6((6+((7
6((6+((7
5(9,6,216
'(6&5,37,21
5(9
$33529('
'$7(
&+(&.('
'5$:1
'$7(
1$0(
'5$:1
7+(,1)250$7,21&217$,1(',17+,6'5$:,1*
,67+(3523(57<2)&2%+$0$1<5(352'8&7,21
,13$5725$6$:+2/(:,7+287:5,77(1
3(50,66,212)&2%+$0,6352+,%,7('
81/(6627+(5:,6(63(&,),('
',0(16,216$5(,1,1&+(6>00@
72/(5$1&(6
1(;7$66<
86('21
&+(&.('
(1*$335
'21276&$/('5$:,1*
0$7(5,$/
),1,6+
6((127(
6((127(
7<3('6,*1$785(6,1',&$7($33529$/
+$1':5,77(16,*1$785($33529$/2)
7+,6'2&80(17,621),/($7&20$17
,1'8675,(6,1&)8//(5721&$/,)251,$
7+(6(&2002',7,(67(&+12/2*<25
62)7:$5($5(&21752//(',1
$&&25'$1&(:,7+7+(81,7('67$7(6
(;3257$'0,1,675$7,215(*8/$7,216
:+(1(;3257(')5207+(81,7('67$7(6
',9(56,21&2175$5<7286/$:,6
352+,%,7('
$1*/(6
,1&+(6
PP
;;
;
;;;
;;
;;;;
;;;
$$
6&02XWOLQH'UDZLQJ

,'HPLUHO
,'HPLUHO 
4$

$$
':*

Table of Contents