EasyManua.ls Logo

Compumatic MINIDART v3 - Page 65

Default Icon
79 pages
Print Icon
To Next Page IconTo Next Page
To Next Page IconTo Next Page
To Previous Page IconTo Previous Page
To Previous Page IconTo Previous Page
Loading...
-65-
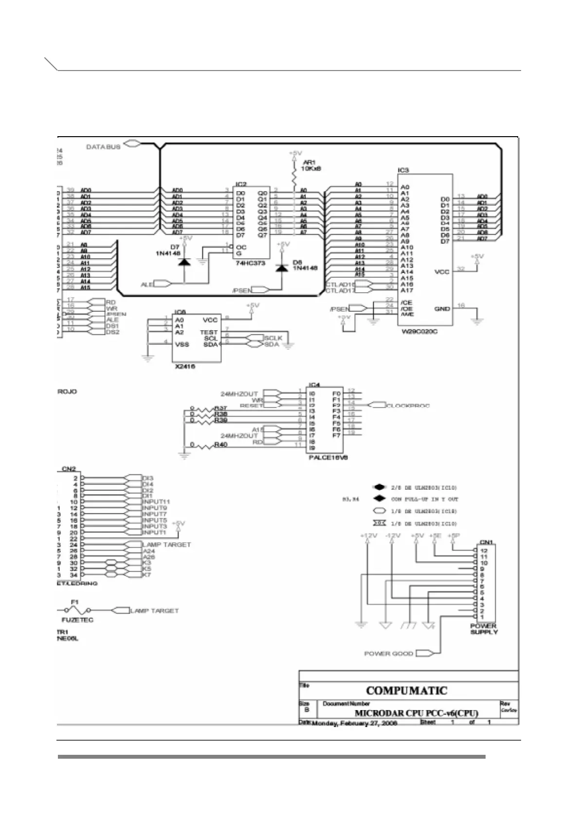
APPENDIX E- MINIDART CPU ELECTRONIC SCHEMATIC

Table of Contents