EasyManua.ls Logo

Corken 91 - Page 46

Corken 91
100 pages
Print Icon
To Next Page IconTo Next Page
To Next Page IconTo Next Page
To Previous Page IconTo Previous Page
To Previous Page IconTo Previous Page
Loading...
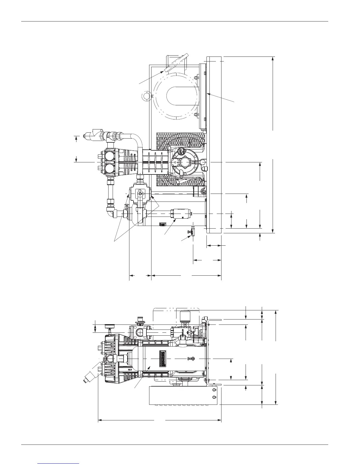
All dimensions are in inches (millimeters).
Appendix DOutline Dimensions
Model 491 with 107 Mounting
48 (1,219)
25-3/4 (654)
15 (381)
18 (457)
18 (457)
9-7/16
(240)
7-1/8
(181
4
(102)
4
(102)
7-3/4
(197)
5-3/4
(146)
5-5/16
(135)
2-7/16
(62)
2-1/8
(54)
1-1/2
(38)
1-1/2
(38)
19 -1/8
(486)
33-5/8
(854)
6
(152)
1-1/4
(32)
Liquid drain
1/4" NPT
Strainer
Liquid
trap
Adjustable motor
slidebase
Electric motor
(optional)
Inlet / Outlet
4-way valve
1" NPT
46

Table of Contents

Related product manuals