EasyManua.ls Logo

Dahua NVR5432-XI - NVR624-XI Series

Dahua NVR5432-XI
490 pages
Print Icon
To Next Page IconTo Next Page
To Next Page IconTo Next Page
To Previous Page IconTo Previous Page
To Previous Page IconTo Previous Page
Loading...
2.2.30 NVR624-XI Series
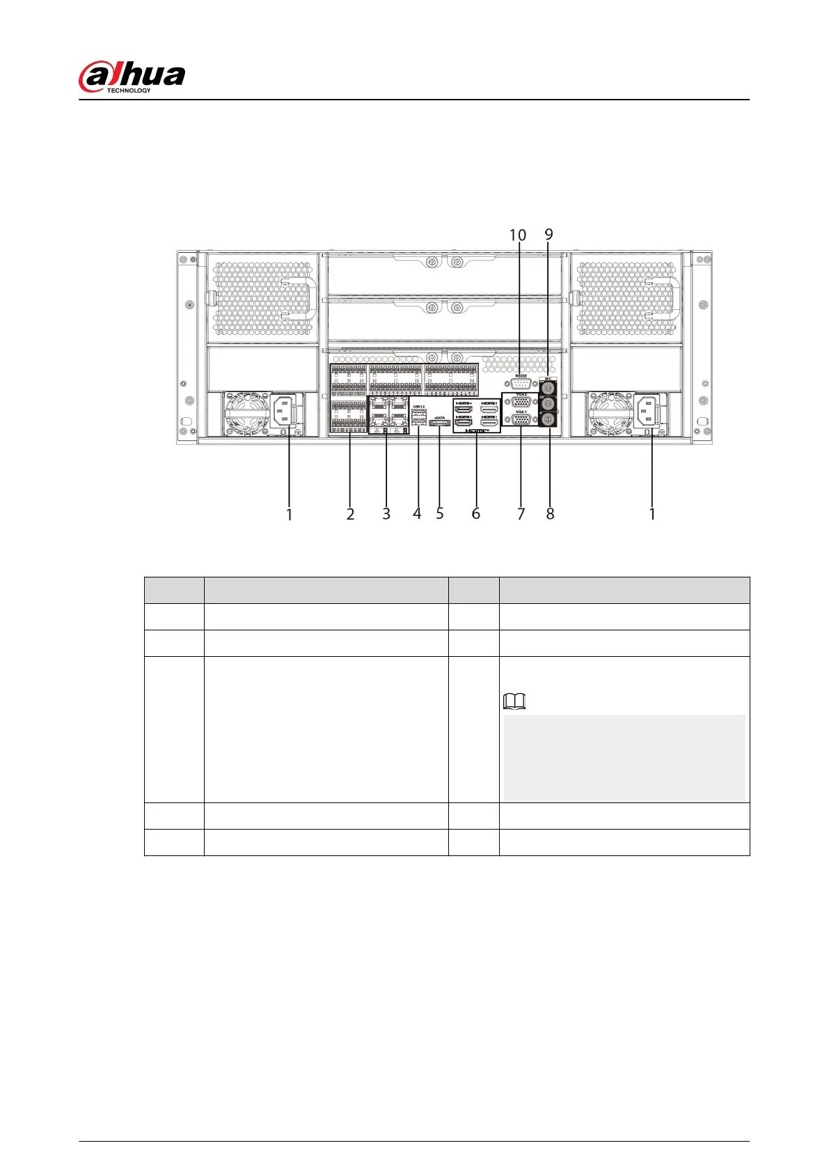
The redundant power series rear panel of NVR624-XI series is shown as below.
Figure 2-116 Rear panel
Table 2-46 Ports
No.
Name No. Name
1 Power Input 2 Alarm In/Out
3 Network Port 4 USB Port
5 eSATA Port 6
HDMI Port
High-denition decoding card is not
installed in standard hardware
conguration, you can purchase as
needed.
7 VGA Port 8 AUDIO IN, RCA Connector
9 AUDIO OUT, RCA Connector 10 RS-232 Port
User's Manual
76

Table of Contents

Related product manuals