EasyManua.ls Logo

Dahua NVR5432-XI - Alarm Connection; Alarm Port

Dahua NVR5432-XI
490 pages
Print Icon
To Next Page IconTo Next Page
To Next Page IconTo Next Page
To Previous Page IconTo Previous Page
To Previous Page IconTo Previous Page
Loading...
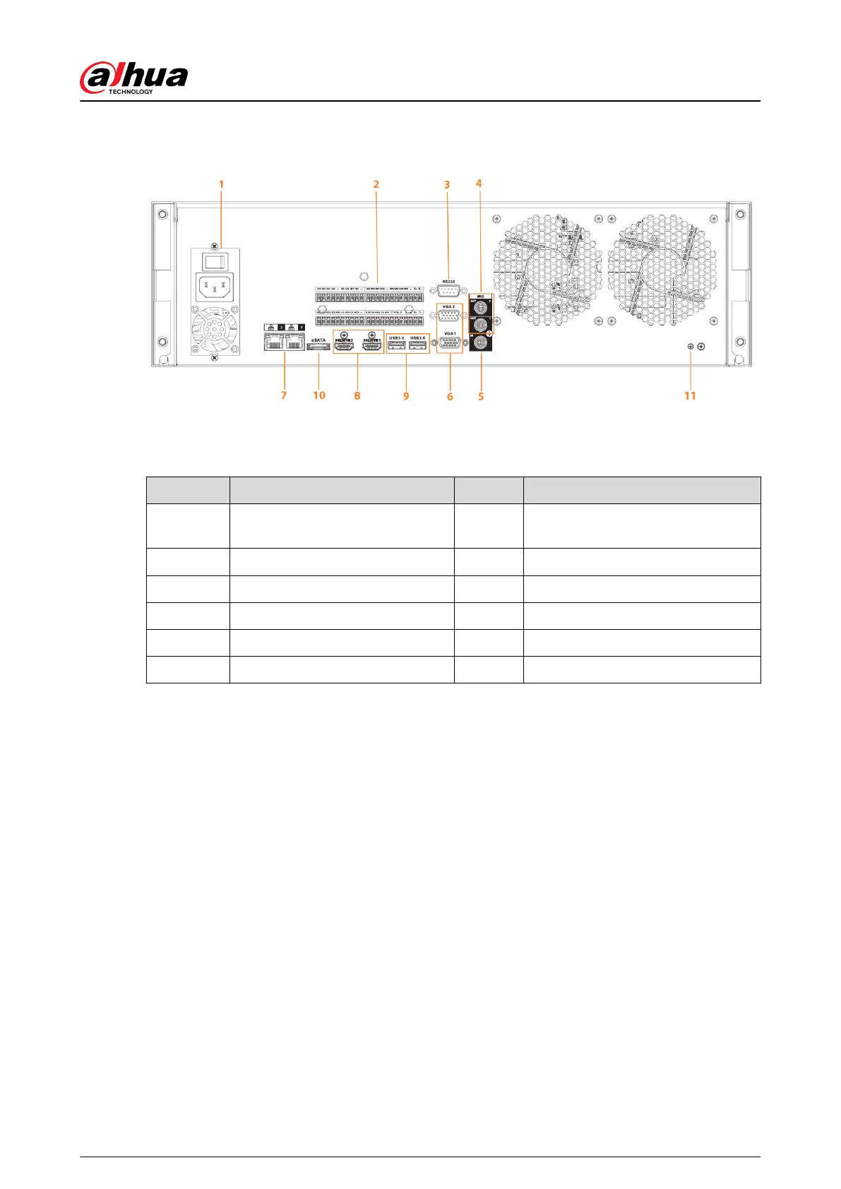
Figure 2-126 Rear panel
Table 2-49 Ports description
No. Function No. Function
1 Power socket. 2
Alarm input/alarm output/RS-485
port
3 RS-232 port 4 Audio output
5 Audio input 6 VGA port
7 Network port 8 HDMI port
9 USB 3.0 port 10 eSATA port
12 Ground
2.3 Alarm Connection
2.3.1 Alarm Port
The alarm port is shown as below. The following gure is for reference only.
User's Manual
82

Table of Contents

Related product manuals